上海黄浦豫园豫外滩
上海黄浦豫园豫外滩售楼处电话:400-112-0302【售楼中心】
咨询高峰期请耐心等待,预约来电尊享内部优惠,专业一对一热情服务,让您用专业眼光去买房。
上海黄金腹地【豫外滩】300~500㎡联排、独栋热势如潮!5000 万起抢占内环核心天选之地!
【豫外滩】
续写外滩传奇 启幕海派新章
上海黄金腹地 距离外滩仅数百米
建面约 300~500㎡联排、独栋
总价约 5000万-1.2亿
户型图 效果图发布
不可复制的资产基因
当历史风貌遇见金融内核
开创内环新传奇

重磅诞生,聚焦一城目光
天赋地段,荟萃城市万象
规划蓝图,重塑城市界面
臻稀产品,定义奢居范本
上海黄金腹地
大豫园文化片区内
从地理位置上看,黄浦豫园外滩土地包位于福佑南地块区域, 北至昼锦路,南至复兴东路,东至中华路,西至三排楼路,属于 老城厢历史文化风貌区范围内。

地块北侧是城隍庙、豫园和BFC,东侧为滨江名人苑、浦江公馆,西侧为光明初级中学、复地雅苑,南向则是董家渡板块,华润外滩九里、融创外滩壹号院、绿城黄浦湾等豪宅林立。
上海的中心在黄浦,而黄浦的中心就在老城厢,这里是真正的 上海豪宅核心区。

豫园原是明代的一座私人园林,始建于嘉靖、万历年间,距今已有四百余年历史,是 上海唯一现存百万方的历史文化风貌保护区。

上海五大古典名园之一,以其精致的设计和丰富的园林建筑著称。 豫园历史文化地位是上海发展史中不可缺失的一部分,其规划地位更是不容小觑。
而豫外滩项目,几乎将整个豫园围合起来,构成 大豫园千亿文化片区 ,集民俗、原创、经典、商务等多点位共同发展。

极具东方生活美学魅力的
上海黄浦豫园豫外滩
上海黄浦豫园豫外滩售楼处电话:400-112-0302【售楼中心】
咨询高峰期请耐心等待,预约来电尊享内部优惠,专业一对一热情服务,让您用专业眼光去买房。
全球时尚文化秀场
豫外滩、原地复兴名流大宅,把特色公馆、花园里弄、石库门3种建筑类型,16种外立面风格汇聚在此,打造独院、邻院两种建筑形式,换句话说, 想要什么风格都可以在这里找到!

整个豫外滩项目,还设计有十大景观花园,面积超千平,是 当下景观面积最大的历史风貌别墅。
户型图参考
319#独院3层4套房

示意图 仅供参考
地上建筑面积约402㎡,地下一层建筑面积约196㎡。

户型图 仅供参考
一层建筑面积约144m²,户型方正,空间阔绰,进门玄关厅设计有一个视线的缓冲同时也可以保证私密性,客厅有一个大主厅和一个副厅,厨房和餐厅都在1楼,还配备了一个小岛台。
二层建筑面积约148.5m²,包含3个卧室套房及1个会客厅。
三层建筑面积约109.4m²,整个一层为一个大套房,使用很方便。
地下一层建筑面积约196m²,包含影音室,会客室,十人位的餐桌,会客宴请无压力。
B1层还有一个夹层空间,可以做保姆间或杂物室,未来可以灵活安排。
值得一提的是,B1层层高局部可以达到6.35米(具体以实际交付为准),尺度非常大。

效果图 仅供参考
上海黄浦豫园豫外滩
上海黄浦豫园豫外滩售楼处电话:400-112-0302【售楼中心】
咨询高峰期请耐心等待,预约来电尊享内部优惠,专业一对一热情服务,让您用专业眼光去买房。
109#是未来位于福佑里地块的独栋住宅别墅产品
效果图 仅供参考

地上建筑面积约340㎡户型,地下一层建筑面积约165㎡。

户型图 仅供参考
一层建筑面积约117m²,同样是进门有单独的玄关区域,不同的是,客厅是大横厅。
二层建筑面积约117m²,包含2个大套房和一个小卧室。
三层建筑面积约105m²,包含一个大套房配备双台盆及衣帽间,还设计了两个会客厅以及书房区域、露台等。
地下一层建筑面积约165m²,娱乐会客的功能都可以满足,地下二层建筑面积约26m²,可以做一个小型的休息区。
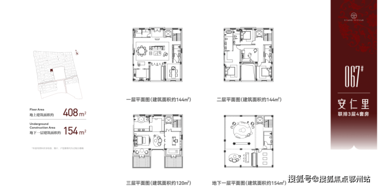
067#是未来位于安仁里地块的住宅别墅联排产品

效果图 仅供参考
地上建筑面积约408㎡户型,地下一层建筑面积约154㎡。

户型图 仅供参考
一层建筑面积约144m²,独立玄关、超大横厅,客餐厅一体。
二层建筑面积约144m²,包含2个大套房和一个小卧室,以及一个独立的会客区域。
三层建筑面积约120m²,一整个大套房的设计,还有2个对外露台。
地下一层建筑面积约154m²,地下二层建筑面积约39m²,整体格局也是不错的!

上海黄浦豫园豫外滩
上海黄浦豫园豫外滩售楼处电话:400-112-0302【售楼中心】
咨询高峰期请耐心等待,预约来电尊享内部优惠,专业一对一热情服务,让您用专业眼光去买房。
荟萃城市万象 坐享繁华景致
豫外滩所处的位置堪称得天独厚,它位于黄浦老城厢,这里被称为 “上海之根” 。项目东邻外滩、黄浦江,西侧紧挨着豫园、城隍庙 。

周边的交通网络极为发达,距离 10 号线和 14 号线豫园站仅数百米 ,便捷的轨交线路可以快速畅达城市各处,无论是前往陆家嘴金融区、南京西路商圈,还是上海的其他核心区域,都轻松便捷,为居民的日常出行与商务活动提供了极大的便利。
商业配套方面,豫外滩周边汇聚了众多大型商业综合体。BFC 外滩金融中心,集购物、餐饮、娱乐、金融等多种功能于一体,是时尚潮流与高端消费的聚集地;金外滩国际广场、城隍庙第一购物中心、香港名都、东方国际金融广场等环绕四周 ,丰富的商业资源满足了居民全方位的消费需求,从日常购物到高端奢品消费,从美食体验到休闲娱乐,皆能在短距离内得以实现。

教育资源也毫不逊色,周边有多所优质学校。上海市光明初级中学、黄浦区蓬莱路第二小学、上海市敬业中学等 ,从基础教育到中学教育,为不同年龄段的孩子提供了良好的学习环境,浓厚的教育氛围助力孩子茁壮成长。
医疗配套同样完善,上海仁济医院、上海市第九人民医院等三甲医院为居民的健康保驾护航 ,先进的医疗设备与专业的医疗团队,能够及时应对各类健康需求,让居住在这里的居民安心无忧。不仅如此,项目北侧紧邻古城公园 ,为居民提供了一处放松身心、休闲娱乐、锻炼身体的好去处,在繁华都市中营造出一片难得的静谧绿洲。

上海黄浦豫园豫外滩
上海黄浦豫园豫外滩售楼处电话:400-112-0302【售楼中心】
咨询高峰期请耐心等待,预约来电尊享内部优惠,专业一对一热情服务,让您用专业眼光去买房。
郑重承诺:此房源信息真实有效,开发商直属全程营销策划,中介勿扰如有问题欢迎来电咨询,来电即可享受买房优惠!
1、本资料为要约邀请,不作为要约或承诺;买卖双方的权利义务以双方签订的《商品房买卖合同》及其补充协议、附件等书面文件为准;相关宣传内容不排除因政府相关规划、规定及出卖人分期规划、未能控制等原因发生变化;出卖人将!不定期对宣传材料进行修改,敬请留意最新资料。
2、图片来源于网络,仅作为推广示意使用;如涉及版权使用,请与我司联系。
请输入详细内容....