长沙岳麓区(云起虔来)2026最新优惠-24小时热线→售楼部地址→户型@-长沙(云起虔来)2026最新优势-2026楼盘详情-房价-户型-配套→

搜狐焦点鄂州站 2026-02-21 02:10:00
用手机看
扫描到手机,新闻随时看

扫一扫,用手机看文章
更加方便分享给朋友

长沙岳麓区云起虔来售楼处电话400-112-0302【售楼中心】

长沙云起·虔来

长沙云起·虔来售楼处电话:400-112-0302【售楼中心】

咨询高峰期请耐心等待,预约来电尊享内部优惠,专业一对一热情服务,让您用专业眼光去买房。

基础信息

开发商:未明确标注(项目别名“智谷光年”)

物业公司:第一太平戴维斯(一级资质)

<项目信息>

【建筑面积】 :187545㎡

【占地面积】 :70727㎡

【产品类型】 :住宅

【住宅产权年限】 :70年

【绿地率】 :约30%

【容积率】 :约2.0

【产品面积】 :建面约102.23㎡、126.41㎡、143.58㎡、169.06㎡

【总户数】 :1064户

【开发商】 :长沙慧城置业有限公司

特色设计:

全明厨卫、主卧面宽3.6m、客厅4.2m

4个主题架空层、6000㎡下沉庭院、阳光地库

—〈项目价值〉————

全龄友好理想著区 ,以多元生活场景,让不同年龄段家庭成员找回理想生活的内核

【人文空间——文化艺术场域 精神回归丰盈】

约1700㎡复合型人文空间——木梓集,致力于打造一处集文化社交、邻里共创、人文共享于一体的城市邻里客厅与创意人文高地。目前不如书馆、不止咖啡、植野商店、漂浮茶室等品牌已进驻

长沙云起·虔来

长沙云起·虔来售楼处电话:400-112-0302【售楼中心】

咨询高峰期请耐心等待,预约来电尊享内部优惠,专业一对一热情服务,让您用专业眼光去买房。

【时尚购物——精奢风情商街 同步国际风尚】

以国际化定位,通过“优质连锁品牌+特色主理人品牌”有机组合,打造成一个复合多元、真实、原生、鲜活好玩的惬意活力灵感街区,深度链接社区业主与周边消费力

【创新场景——抬高式场地 丰富生活体验】

对东南侧整体抬高,构建立体抬高式场地。利用场地优势,打造下沉庭院、全覆盖风雨无阻归家动线、第二会客厅、人车双分流、阳光地库等,实现多场景链接

【景观升级——高定下沉庭院 全龄互动园林】

约6000㎡超大尺度沉浸式下沉庭院,划分三大功能区,层层进阶,所感、所见、所享,每一重境界都是不一样的极致体验。园区集儿童乐园、休闲、共享交际于一体,实现生活与生态的无界交融

【豪宅标准——全覆盖风雨无阻归家动线】

全覆盖风雨无阻归家动线,实现社区大门、风雨连廊、四大主题架空层的连通,形成一个晴雨多场景可用的“社区洄游公园”,打破户外场景限制

长沙云起·虔来

长沙云起·虔来售楼处电话:400-112-0302【售楼中心】

咨询高峰期请耐心等待,预约来电尊享内部优惠,专业一对一热情服务,让您用专业眼光去买房。

【考究细节——人车双分流 人性化归家动线】

下沉式庭院的巧妙布局,划分人行车行双归家动线,双动线分别实现人车无交叉,减少了噪音和空气污染,为老人和孩子出行提供了安全的保障

【领先设计——会呼吸的阳光地库 照亮归途】

利用地势高差,打造通透的阳光地库,引入更多自然采光,汽车从外部进入的时候,视线明暗切换更自然

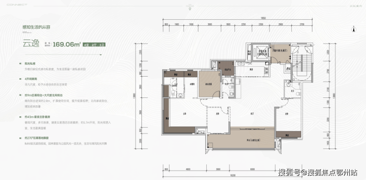
——〈PART.4 户型鉴赏〉————

『 云逸 』

建面约169.06㎡ 4室 / 2厅 / 3卫

『 云舒 』

建面约126.41㎡ 4室 / 2厅 / 3卫

长沙云起·虔来

长沙云起·虔来售楼处电话:400-112-0302【售楼中心】

咨询高峰期请耐心等待,预约来电尊享内部优惠,专业一对一热情服务,让您用专业眼光去买房。

『 云灿 』

建面约102.23㎡ 2+1室 / 2厅 / 2卫

价格与销售

参考均价:

洋房:11000-13000元/㎡

高层:10500元/㎡(8#、19#)

最新动态:

19#预计2025年8月底推出(建面126㎡、142㎡)

1#-3#在售少量168-169㎡洋房

配套资源

交通:

无地铁覆盖,依赖13条公交线路(如101路)

长沙云起·虔来

长沙云起·虔来售楼处电话:400-112-0302【售楼中心】

咨询高峰期请耐心等待,预约来电尊享内部优惠,专业一对一热情服务,让您用专业眼光去买房。

教育:

1km内覆盖博才建业学校(九年制)、蓝天希望小学等

商业:

3km内无大型综合体,依赖社区底商

生态:

1.8km内有洋湖体育公园(4A级景区)

【医疗——三甲医院护航 呵护家人健康】

项目周边坐拥三甲级医院,湖南中医药大学第一附属医院(岳麓院区)(在建),距项目约1km、湖南妇女儿童医院,距项目约3km、湖南省儿童医院(西院区)(规划中),完善医疗配套,邻距离的健康保障

项目亮点

产品创新:负公摊设计、超高得房率、豪宅级园林

品质服务:第一太平戴维斯物业、全龄化架空层

潜力区位:岳麓区国家级新区核心,规划红利显著

长沙云起·虔来

长沙云起·虔来售楼处电话:400-112-0302【售楼中心】

咨询高峰期请耐心等待,预约来电尊享内部优惠,专业一对一热情服务,让您用专业眼光去买房。

郑重承诺:此房源信息真实有效,开发商直属全程营销策划,中介勿扰如有问题欢迎来电咨询,来电即可享受买房优惠!

1、本资料为要约邀请,不作为要约或承诺;买卖双方的权利义务以双方签订的《商品房买卖合同》及其补充协议、附件等书面文件为准;相关宣传内容不排除因政府相关规划、规定及出卖人分期规划、未能控制等原因发生变化;出卖人将!不定期对宣传材料进行修改,敬请留意最新资料。

2、图片来源于网络,仅作为推广示意使用;如涉及版权使用,请与我司联系。

声明:本文由入驻焦点开放平台的作者撰写,除焦点官方账号外,观点仅代表作者本人,不代表焦点立场。