上海徐汇(海上·清和玺)
上海徐汇(海上·清和玺)售楼处电话400-112-0302【售楼中心】
咨询高峰期请耐心等待,预约来电尊享内部优惠,专业一对一热情服务,让您用专业眼光去买房。
项目三期4月27日开盘,当日去化率约80%,现少量房源在售!
推售建面约112-120-135㎡3房
均价112800元/㎡,总价1016万起
即将加推两栋(11-12#)建面约143㎡四房,而且是6-7层真洋房,也是目前徐汇唯一在售的洋房产品,有且仅有25套!这一次真要比拼手速了!月即将加推月即将加推

敲黑板:徐汇、上海中学旁、6-7层真洋房,总价2000万左右终极改善!6月即将加推
生活配套
交通方面:地块周边最近的地铁站是15号线罗秀路站,直线距离约650米,未来还有23号线龙瑞路站(在建中),直线距离约1.1km。

商业方面:地块周边有凌云天地、徐汇梅陇商业中心等;另外,距离南方商城和徐家汇商圈等大型商业中心约有4-6公里。

教育方面:地块周边教育资源非常丰富,包括被誉为“华育中学亲儿子”的上海四大名校之一逸夫小学、上海中学、华东理工大学附中、上海小学、徐汇实验小学、长桥中学等。

生态方面:地块周边有上海植物园、前滩体育公园、前滩休闲公园、徐汇区西岸艺术公园等。

项目信息
海上清和玺由两幅地块组成,(徐汇长桥xh315-10地块、xh313-16地块),项目四至范围:东至龙川路,南至罗香路,,西至长桥路,北至地块边界,临近中环高架!

其中xh315-10地块为三类住宅组团用地(90%)、社区级公共服务设,施用地(10%), 总用地面积约36686.38平方米,容积率3.12,限高100米,总建筑面积约172234.10平方米,地上计容面积约114461.51平方米, 其中商品房面积约101062.94平方米,规划住宅套数835套。
xh313-16地块为三类住宅组团用地(57%)、四类住宅组团用地(16%)、社区级公共服务设施用地(27%), 总用地面积约3000.12平方米,容积率3.17,限高60米,总建筑面积约12282.28平方米,地上计容面积约9510.38平方米, 规划住宅套数91套。该住宅应该是作为保障房使用。

根据设计方案显示,项目拟建 7栋25至33层的高层住宅、4栋6至14层的洋房和1栋19层的保障房,可售住宅835套。

01、曲面流体建筑,定制徐汇的新美学标杆
正所谓颜值即正义,在这个看脸的时代,外立面很重要。
而海上·清和玺的外立面,给人的第一感觉就是:不愧是豪宅,外立面的审美表达也太高级了。
项目建筑效果图,仅供参考

项目提取徐汇滨江 流动线条,打造新城市曲面流体建筑 ,圆弧式转角背后即是对于艺术滨江的美学致敬。
香槟金色格栅塔冠与壁柱形成的形制立面,完美演绎“玺”系基因的精髓,尽显低调奢华的气质。
项目建筑效果图,仅供参考

不管是多功能会所的规划效果、还是创意展示空间的实景呈现,都带给人很强的视觉冲击力!
项目会所效果图,仅供参考


上海徐汇(海上·清和玺)
上海徐汇(海上·清和玺)售楼处电话400-112-0302【售楼中心】
咨询高峰期请耐心等待,预约来电尊享内部优惠,专业一对一热情服务,让您用专业眼光去买房。
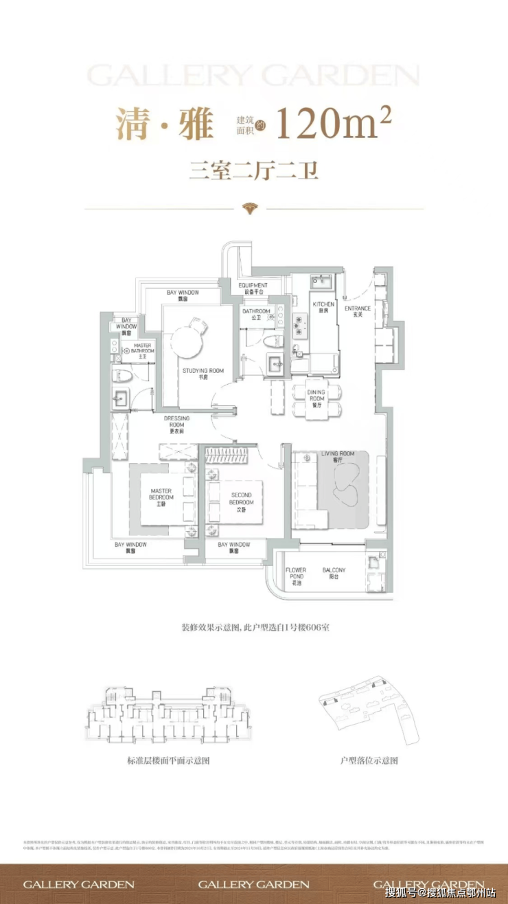
户型图赏鉴
作为徐汇区当前唯一总价2000万左右的四房新盘,在土地资源开发成本日渐高昂的徐汇,低密洋房堪称“绝版资产”,而兼具功能性与收藏属性的「四房真洋房」,更堪称时代孤品。可以说, 这一次之后,很难再有!

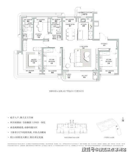
除了本身稀缺性之外,这一次143㎡洋房的产品设计也有诸多亮点。
01、全生命周期产品,四房两卫满足家族式需求
02、类一梯一户,舒适独立入户空间
03、南向四开间,面宽约15.5m,独立餐客厅,南北通透
04、是徐汇唯一2000万左右能买到四房的新盘
以「 全生命周期住宅」为核心理念,海上·清和玺洋房以 四房两卫的家族式空间布局,精准匹配多代共居的进阶需求, 以「类一梯一户」的私密设计,重塑归家礼仪的尊崇感。
户型设计上 约15.5米南向四开间,以大开大合的格局重构空间美学与功能的平衡。 独立餐客厅南北贯通,舒适通透十足,同时 6-7层低密真洋房形态,打破传统高层压抑感,将光照提升至极致。
无论是三代同堂的欢声笑语,抑或私密静谧的独处时光,皆能在此找到理想载体。
据悉,143㎡大师样板现已开放,预计6月加推,臻稀席位仅25个!预约从速!




上海徐汇(海上·清和玺)
上海徐汇(海上·清和玺)售楼处电话400-112-0302【售楼中心】
咨询高峰期请耐心等待,预约来电尊享内部优惠,专业一对一热情服务,让您用专业眼光去买房。


招商在以往的成功经验基础上,调研了大量客户需求,为户型设计带来重磅升级:
项目舍弃了传统逼仄的百平三房,将最小面积提升到了建面约112㎡,而这12个平方的提升,让整体户型的空间尺度感达到了新的高度。
在户型细节方面, 全系高层户型,配置S墙。把传统直墙做成弯的,为相邻两户创造出了额外的凹槽空间,扩展了收纳。
这是一个非常巧妙的设计,比如将冰箱塞入这个凹槽,从而释放厨房的冰箱空间,延伸灶台的面积,或者可以做岛台...
而在 建面约134㎡ 3房,配置了主卧套房,更是配置了270°环幕级景观飘窗,正如同全面屏一样,带来IMAX级的宽幕视野!
在细节装标方面,我们来看创意展示间(仅供参考,最终交标以买卖合同以及实际交付为准):
通室整体选择了全新升级的奢石、奢板、奢皮、奢镜混合搭配,将静奢海派的艺术感展现的淋漓尽致。
入户空间, 配置精装铸铝门,定制5合1门锁,点缀以奢石把手。
玄关位置地面 采用石材,个性化的logo拼花,尊崇感十足,配合定制玄关柜,柜内交付有除臭精灵,功能性与颜值,双双拉满。

创意展示间实拍,非交付标准
厨房方面, 水波纹玻璃+金属造型玻璃移门,隐形上轨,厨房交付 线性凉霸、末端饮水、博世或AEG(或同等品牌) 烟灶、洗碗机三件套。

创意展示间实拍,非交付标准
划重点,项目同样交付 AEG或博世(或同等品牌) 内嵌冰箱,厨房配置一应俱全。

创意展示间实拍,非交付标准
客餐厅方面, 电视背景墙采用卡慕白石材+皮革,均为交付标准;地面采用简一(或同等品牌)的 900*1800仿石砖,密拼施工,几乎看不到有任何缝隙——相信有装修经验的小伙伴一定知道,这种大砖的价格和这样的密缝工艺成本有多高!


创意展示间实拍,非交付标准
主卧大套房设计,拼花实木复合地板,更显海派风味。

创意展示间实拍,非交付标准
卫浴方面,地面及淋浴区,全部选用石材,墙面的 公主白玉岩板,温润暖色调,质感非凡。
唯宝(或同等品牌)台盆、主卫 科勒(或同等品牌)复古龙头、 高仪(或同等品牌)智能马桶、奢石台面、镜柜美妆冰箱、线性风暖……每一个细节,招商都为业主考虑到了。

创意展示间实拍,非交付标准
新玺系的品质,仅在室内这一项,就已经体现得淋漓极致,而视野转到室外,更是从不让人失望。
上海徐汇(海上·清和玺)
上海徐汇(海上·清和玺)售楼处电话400-112-0302【售楼中心】
咨询高峰期请耐心等待,预约来电尊享内部优惠,专业一对一热情服务,让您用专业眼光去买房。
郑重承诺:此房源信息真实有效,开发商直属全程营销策划,中介勿扰如有问题欢迎来电咨询,来电即可享受买房优惠!
1、本资料为要约邀请,不作为要约或承诺;买卖双方的权利义务以双方签订的《商品房买卖合同》及其补充协议、附件等书面文件为准;相关宣传内容不排除因政府相关规划、规定及出卖人分期规划、未能控制等原因发生变化;出卖人将!不定期对宣传材料进行修改,敬请留意最新资料。
2、图片来源于网络,仅作为推广示意使用;如涉及版权使用,请与我司联系。