上海松江【佘山中凯曼荼园】→楼盘电话 -楼盘详情-首页网站

搜狐焦点鄂州站 2025-07-20 07:05:08
用手机看
扫描到手机,新闻随时看

扫一扫,用手机看文章
更加方便分享给朋友

松江中凯曼荼园售楼处电话400-112-0302【售楼中心】

上海曼荼园

上海曼荼园售楼处电话400-112-0302【售楼中心】

咨询高峰期请耐心等待,预约来电尊享内部优惠,专业一对一热情服务,让您用专业眼光去买房。

☆ 中凯·佘山曼荼园

楼盘 简介

Fousing Introduce————————————

上海曼荼园

上海曼荼园售楼处电话400-112-0302【售楼中心】

咨询高峰期请耐心等待,预约来电尊享内部优惠,专业一对一热情服务,让您用专业眼光去买房。

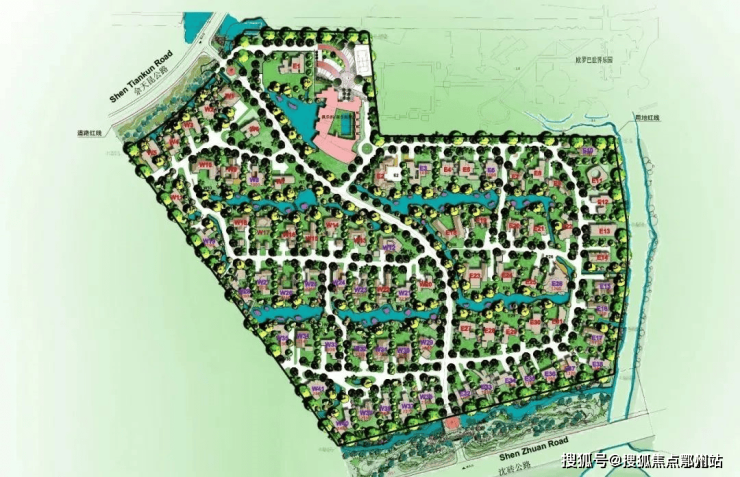
中凯曼荼园落座在佘山国家旅游度假区的核心,南临沈砖公路,东面为月湖的自然河道,西面为皇家花园别墅,北靠东西两座佘山,

是整个度假区内唯一能饱览双佘山美景的风水宝地。中凯曼荼园就是在这样一个非富即贵之地,于佘山东西交汇处推山理水、叠石造林,营造出幽远的生活意境。

项目由79幢别墅、2幢商务别墅构成,建筑面积约61715平方米,积率仅为0.2。它集合了全球十家著名建筑师事务所100多位设计师巧思,

100%原创,历时8载,设计费用达1.5亿,从设计到建造的过程,每一步都精雕细刻,每一个元素都讲究原创性和唯一性,更有建筑外观专利保证;81件人居艺术藏品,谨献81位贵胄人士品鉴。

中凯曼荼园被称为可以居住的艺术品,它不仅仅只是一处住宅,更是一处值得珍藏和流传的艺术品,而它的艺术价值绝非偶然,而是集人文、自然之精华所成。

楼盘规划

Housing Planning

————————————

SPRING MOONLIGHT

☑占地面积:185764㎡

☑ 建筑面积:61715㎡

☑ 产品类型:独栋别墅

☑ 总户数:81栋

☑ 建筑面积:342-668㎡

☑ 花园面积:874-2000㎡

☑ 总 价 约 :3897-9351万

☑ 容积率:0.2

☑ 绿化率:78%

☑ 开发商:嘉凯集团

☑ 物业公司:恒豪基业

☑ 物业费:11.8元/㎡·月

☑ 交房:现房,毛坯交付

☑车位:自带地面车库,可停2-3个车位

商圈配套

Supporting business district

————————————

佘山之所以成为上海富人区,周边配套是其中重要因素之一。艾美五星级酒店,天马高尔夫球场、佘山高尔夫球场、深坑酒店、月湖温泉酒店、艾美精品酒、月湖温泉酒店、索夫特大酒店等高端配套环绕四周,月湖雕塑公园、欢乐谷、辰山植物园三大公园尽享休闲与娱乐,这些都使佘山成为富豪名流的向往之地,中凯曼荼园则是佘山富人区中的精品别墅,只为懂得的人。

商业:保利悦活汇荟、大润发超市、松江万达广场、奥特莱斯、 佘山天地休闲广场

教育:协和双语学校、宋庆龄学校、赫德双语学校、包玉刚学校、松江第二实验小学 、松江大学城

医疗:松江第一人民医院,松江妇幼保健院,德达医院、佘山镇社区卫生服务中心

交通:地铁9号线洞泾站约3.2公里、佘山站约3.5公里;

项目鉴赏

Future Appreciation

————————————

上海曼荼园

上海曼荼园售楼处电话400-112-0302【售楼中心】

咨询高峰期请耐心等待,预约来电尊享内部优惠,专业一对一热情服务,让您用专业眼光去买房。

样板间鉴赏

Model room Appreciation

————————————

上海曼荼园

上海曼荼园售楼处电话400-112-0302【售楼中心】

咨询高峰期请耐心等待,预约来电尊享内部优惠,专业一对一热情服务,让您用专业眼光去买房。

<< 滑动查看样板房图片 >>

户型鉴赏

House Appreciation

————————————

上海曼荼园

上海曼荼园售楼处电话400-112-0302【售楼中心】

咨询高峰期请耐心等待,预约来电尊享内部优惠,专业一对一热情服务,让您用专业眼光去买房。

W15户型

地上面积495.65m²

地下面积317.62m²

总建筑面813.27m²

花园面积1392.19m²

上海曼荼园

上海曼荼园售楼处电话400-112-0302【售楼中心】

咨询高峰期请耐心等待,预约来电尊享内部优惠,专业一对一热情服务,让您用专业眼光去买房。

郑重承诺:此房源信息真实有效,开发商直属全程营销策划,中介勿扰如有问题欢迎来电咨询,来电即可享受买房优惠!

1、本资料为要约邀请,不作为要约或承诺;买卖双方的权利义务以双方签订的《商品房买卖合同》及其补充协议、附件等书面文件为准;

相关宣传内容不排除因政府相关规划、规定及出卖人分期规划、未能控制等原因发生变化;出卖人将!不定期对宣传材料进行修改,敬请留意最新资料。

2、图片来源于网络,仅作为推广示意使用;如涉及版权使用,请与我司联系

声明:本文由入驻焦点开放平台的作者撰写,除焦点官方账号外,观点仅代表作者本人,不代表焦点立场。