首页:武汉(湖畔云境)售楼处-楼盘详情-首页网站→基础参数@武汉(湖畔云境)售楼部电话-楼盘百科详情→24小时热线电话

搜狐焦点鄂州站 2025-12-07 19:36:40
用手机看
扫描到手机,新闻随时看

扫一扫,用手机看文章
更加方便分享给朋友

武汉外环区湖畔云境售楼处电话400-112-0302【售楼中心】

蓝城湖畔雲境

蓝城湖畔雲境售楼处电话:400-112-0302【售楼中心】

咨询高峰期请耐心等待,预约来电尊享内部优惠,专业一对一热情服务,让您用专业眼光去买房。

蓝城湖畔雲境最新节点及优劣势

蓝城湖畔雲境:建面约130-150平米联排别墅在售,总价280万起,另外还有建面约77平米loft(4.5米)和77平米soho(3.2米),折后均价6500-7500元/平。

项目优势分析:

1、主城区:武汉的别墅大部分都是远城区,或者比较偏的位置,蓝城湖畔雲境位于白沙洲三环外,距离三环线比较近,是可以作为第一居所的别墅。

2、地铁盘:地铁盘很多,别墅带地铁的很少见。

3、湖景:小区东面为黄家湖,西面是青菱湖,周边生态环境很不错。

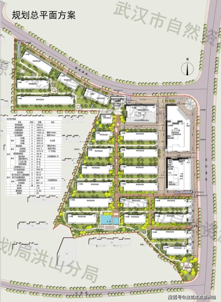
4、低容积率,300%得房率:项目整体容积率(含公寓)约2.0,低层别墅容积率最低0.57,非常低,同时,别墅地面两层,每层6米,再加上其他优化空间,实际上是买2层得6层,相当于300%得房率。

5、品牌、品质:小区由蓝城开发,物业服务为绿城,品牌优势明显,蓝城主打的就是品质,小区采用公建化外立面,园区主出入口规划了景观广场、入口门楼,格栅景墙,喷泉水景等,处处都是精工,品质亮眼。

6、准现房:预计年底交付,还不到一个月了,即买即装,不用等。

项目疑虑提示:周边城市面貌不太好。

楼盘整体数据

蓝城湖畔雲境占地面积约5.7万方,总建面约16.2万方,容积率约2.0,共1123户,机动车停车位1406个,分2期开发,包含22栋别墅和3栋公寓以及部分商业组成。

项目规划平面图

项目地址:洪山青菱湖畔(红园路1号)

开发商:武汉璟锐天城产业园开发有限责任公司

物业:绿城物业管理有限公司武汉分公司

产品类型:住宅

产权年限:40年

物业费:4.5元/平米/月

蓝城湖畔雲境

蓝城湖畔雲境售楼处电话:400-112-0302【售楼中心】

咨询高峰期请耐心等待,预约来电尊享内部优惠,专业一对一热情服务,让您用专业眼光去买房。

交房时间:2023年12月30日

交房标准:毛坯

在售情况:77平米soho、loft/130-150平米联排

均价:公寓6500-7500,联排总价280万起

户型图展示:

loft户型图

SOHO户型图

蓝城湖畔雲境

蓝城湖畔雲境售楼处电话:400-112-0302【售楼中心】

咨询高峰期请耐心等待,预约来电尊享内部优惠,专业一对一热情服务,让您用专业眼光去买房。

130平别墅户型图

区位与交通

区位:

蓝城湖畔雲境位于园艺路与白沙洲大道交汇处,青菱湖畔,在楼市中属于青菱板块,行政划分属于洪山区主城区,项目距离三环线约3.5公里,属于三环外。

该板块夹在青菱湖和黄家湖之间,白沙洲大道高架通过,北接三环线,南面连通青郑高速直达咸宁,周边为大学城,生活配套、交通出行都比较成熟,烟火气十足。

项目区位图

交通出行:

自驾:项目附近主要有一条主干道,白沙洲大道高架,沿白沙洲大道向北有匝道口可以上高架,迅速通往三环线,进入白沙洲三环内或武昌中心,在三环分别向西或向东可直达汉阳、光谷。

交通示意图

蓝城湖畔雲境

蓝城湖畔雲境售楼处电话:400-112-0302【售楼中心】

咨询高峰期请耐心等待,预约来电尊享内部优惠,专业一对一热情服务,让您用专业眼光去买房。

地铁与公交:项目位于地铁5号线2期武科大站与红霞村站之间,距离两个占地约700多米,5号线二期已于今年12月1日开通试运营。可直达复兴路、司门口、武昌滨江等板块。

地铁换乘示意图

配套:

项目周边的配套生活配套很齐全。

商业上,在小区对面的东澜岸广场有丰富的商业业态,包括药店、网咖、菜场、餐饮等,因附近高校多,人流量不错。

大型商业方面,有白沙洲三环内的洪山万科广场和龙湖白沙天街,也可到四环边的江夏永旺。自驾都比较方便。

配套示意图

医疗上,项目毗邻武汉科技大学医院、湖北中医药大学黄家湖医院,区域内还有武汉大学人民医院洪山分院、湖北省妇幼保健院洪山院区。

休闲娱乐上,项目西邻约9000亩青菱湖,距离湖岸线最近距离约200米;东邻约13000亩黄家湖,拥揽约24公里湖岸线。

蓝城湖畔雲境

蓝城湖畔雲境售楼处电话:400-112-0302【售楼中心】

咨询高峰期请耐心等待,预约来电尊享内部优惠,专业一对一热情服务,让您用专业眼光去买房。

郑重承诺:此房源信息真实有效,开发商直属全程营销策划,中介勿扰如有问题欢迎来电咨询,来电即可享受买房优惠!

1、本资料为要约邀请,不作为要约或承诺;买卖双方的权利义务以双方签订的《商品房买卖合同》及其补充协议、附件等书面文件为准;相关宣传内容不排除因政府相关规划、规定及出卖人分期规划、未能控制等原因发生变化;出卖人将!不定期对宣传材料进行修改,敬请留意最新资料。

2、图片来源于网络,仅作为推广示意使用;如涉及版权使用,请与我司联系。

声明:本文由入驻焦点开放平台的作者撰写,除焦点官方账号外,观点仅代表作者本人,不代表焦点立场。