2025聚焦:长沙【长房·岭秀时代】售楼处电话→地址→【长房·岭秀时代】户型→【长房·岭秀时代】价格→楼盘详情→【长房·岭秀时代】2025最新销售动态
扫描到手机,新闻随时看
扫一扫,用手机看文章
更加方便分享给朋友
作为湖南本土最强的房地产开发国企,所开发的项目涉及到全长沙甚至是全省各个角落,被业界尊称为本土房企的龙头老大,颇受市场好评。

长沙雨花区,植物园东,京港澳高速西侧

项目北接湘府路,南临时代阳光大道,西侧万家丽高架纵贯南北,东侧红旗路可直达城南
时代阳光大道:向西车行10分钟可达汽车南站,长株潭城际铁路

项目南北两个地块各配建一个幼儿园,南地块东侧 自建 一所规模为102亩的九年制公办学校(雅礼实验毓秀小学+中学),24个班的小学,60个班的中学,业主子女可配套入学

项目自带1.7万方的风情商业街,位于南地块南侧和西侧,能够满足全家人生活,吃喝玩乐一步到位!
向南步行十分钟可达中建mall
北上车行10分钟可达保利mall,旭辉mall以及天虹ccmall
向西车行十分钟可达德思勤,红星商圈

项目北面毗邻河东片区唯一的国家级森林公园,140公顷的天际岭国家森林公园拥有超过3800多种的植物,建有亚热带最大的珍稀濒危植物保护区森林,覆盖率高达90%,是城市中非常稀缺的高富氧地区


产品 :70年产权普通住宅
占地面积 :212360㎡
容积率 :约2.8
梯户比 : 两梯三户,两梯四户,洋房一梯两户
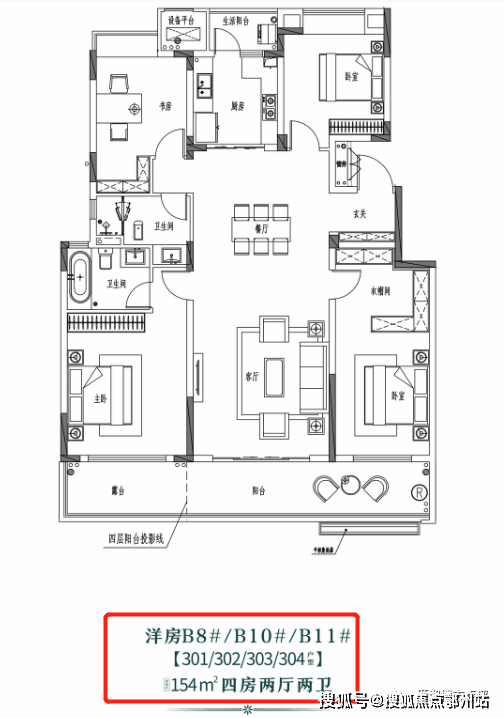
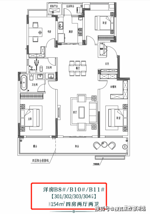
在售面积 :高层114-140-160平, 小高层183.05平,洋房136-230平
价格 :高层9600-11000,小高层11000,洋房11300-14300
E3栋❽字头整栋任选,8千多任选
总层高:31层
总楼栋:44栋
总户数 :3866 户
车位:4084个
物业公司 :长房物业
交房时间:2024年5月 -2025年10月








声明:本文由入驻焦点开放平台的作者撰写,除焦点官方账号外,观点仅代表作者本人,不代表焦点立场。
