杭州科技城-钱湾加速中心售楼处电话:400-112-0302【售楼中心】位于钱塘江边,地铁口江南科技城,是唯一超甲级写字楼。商铺、独栋、整层写字楼都有项目,层高1层4.95米,商铺面积100-300平米,商铺、办公室1-2层面积1450平米,整层出租面积1.6-2.3平米。
杭州科技城-钱湾加速中心
杭州科技城-钱湾加速中心售楼处电话:400-112-0302【售楼中心】
咨询高峰期请耐心等待,预约来电尊享内部优惠,专业一对一热情服务,让您用专业眼光去买房。
钱湾加速中心
钱塘江边|超甲级写字楼|地铁口
江南科技城,唯一超甲级写字楼!
稀缺商业:商铺、独栋、整层写字楼都有
项目位置:(地铁口知行路站附近)
地铁1站到机场,2站到亚运村,3站到杭州东站
开车15分钟到奥体、15分钟到机场
20分钟到杭州东
上天入地都非常方便




〖项目地址〗杭州市萧山区传化科创大厦南侧
〖开发商〗 传化科技城
〖交付时间〗2025年7月
〖层高〗 1层4.95米;其余4.1米
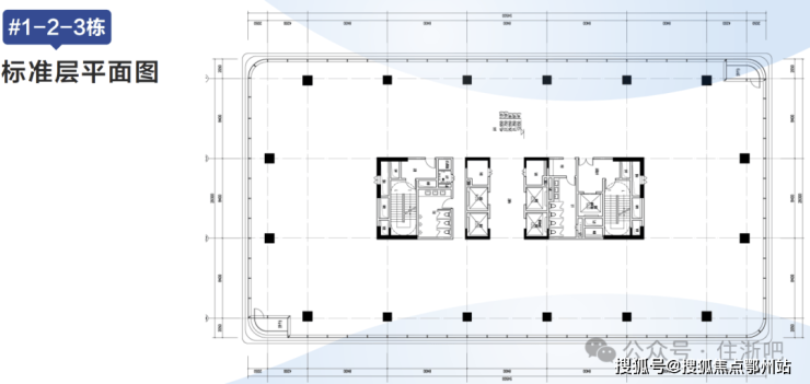
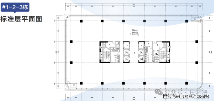
【1号楼】高层写字楼、商铺
1-2层100-300㎡:商铺教培
3-7层分割200-300㎡办公室;1.8~2.3
8-12层整层1580㎡,整层出租:1.6~2.3
杭州科技城-钱湾加速中心
杭州科技城-钱湾加速中心售楼处电话:400-112-0302【售楼中心】
咨询高峰期请耐心等待,预约来电尊享内部优惠,专业一对一热情服务,让您用专业眼光去买房。
商铺平面图:


2层适合做教培,1450平,周边紧临4所学校,这里教培空白!生意非常好
【周边配套】


【户型赏析】




4号楼外立面效果:

杭州科技城-钱湾加速中心
杭州科技城-钱湾加速中心售楼处电话:400-112-0302【售楼中心】
咨询高峰期请耐心等待,预约来电尊享内部优惠,专业一对一热情服务,让您用专业眼光去买房。
郑重承诺:此房源信息真实有效,开发商直属全程营销策划,中介勿扰如有问题欢迎来电咨询,来电即可享受买房优惠!
1、本资料为要约邀请,不作为要约或承诺;买卖双方的权利义务以双方签订的《商品房买卖合同》及其补充协议、附件等书面文件为准;相关宣传内容不排除因政府相关规划、规定及出卖人分期规划、未能控制等原因发生变化;出卖人将!不定期对宣传材料进行修改,敬请留意最新资料。
2、图片来源于网络,仅作为推广示意使用;如涉及版权使用,请与我司联系。