中铁叶香林 (官方售楼处) 电话 - 中铁叶香林销售中心 - 环境 - 户型 - 价格 - 地址 - 楼盘详情 - 配套 - 电话 - 售楼处位置 - 配套 - 电话 - 交房时间
扫描到手机,新闻随时看
扫一扫,用手机看文章
更加方便分享给朋友
中铁叶香林售楼处电话:400-152-4009【开发商已认证】中铁叶香林官方售楼处电话:400-152-4009【售楼处电话/地址】中铁叶香林售楼处电话:400-152-4009【官方认证】
天府后海 栖心院墅-黑龙滩里的中国院子
中国成都·天府南·黑龙滩国际生态旅游度假区
承韵千载 鸣响今朝 建面约108-168m²中国院子
项目基本信息
总占地 :约400亩
项目一期:约51亩
总建筑面积:约26685.73㎡
容积率:约0.42
楼栋总数:23栋
产品面积:约108-168m²
总价区间:160-300万
总户数:约111户
🌳绿地率:约15%
车位数量:约80
装修情况:清水
物业公司:申和物业
物业费用:3.8元/m²/月
交房时间:2025年12月
区位价值
“川西第一海”黑龙滩板块
央企中铁400亿,打造35400亩生态城4A级旅游景区绝佳康养胜地,分布着7峡7坝,85座原生岛屿,486种植物,600余种野生动物,约30万只候鸟在此补给和休憩,负氧离子含量每立方厘米约2.5万个,为成都城区的166倍。
中铁叶香林售楼处电话:400-152-4009【售楼中心】中铁叶香林官方售楼处电话:400-152-4009【售楼处电话/地址】成都中铁叶香林售楼处电话:400-152-4009【官方认证】售楼中心24小时热线电话
品牌价值
实力企业/ 绿色人居倡导者
科兴亚置业,专注地产投资与开发;致力打造黑龙滩高端产品系列,品牌前身深耕成都金融中心高新南区中和板块。
轨道立体交通,通达全城
一轨、两快、三高、双机场便捷交通:成眉S5城际轨道(建设中);
天府大道眉山段、益州大道南延线(建设中);蓉遵高速、第三绕城高速、遂资眉高速;
天府国际机场、双流国际机场。
完善生活配套 居住无忧
【商业】:中铁生活馆、四海生活小镇、地中海俱乐部(年底营业)、双龙艺术中心(在建中)、亚洲最大奥特莱斯(规划中);
【教育】:史蒂芬森幼儿园、东辰国际学校、天府新区实验中学、四川大学眉山校区;
【医疗】:四川省人民医院黑龙滩门诊部、天府华西医院、眉山市中医医院;
【公园/乐园】:火车来斯主题公园、金沙岛生态公园、梵木音乐公园、双燕子公园、中铁体育公园等;乐高乐园(在建中)
【星级酒店】:长岛洲际酒店、英迪格酒店、地中海俱乐部(在建中)。
项目规划
延续千年中国建筑规制,
取址黑龙滩国际生态旅游度假区
山环水抱、玉带缠腰,
在湖光山色之间,打造纯粹的的川西院子。
区域唯一在售川西建筑风格合院,
与黑龙滩自然山水巧妙融入,
尊崇私密的庭院设计。
悠居大境 天人合一
【山环水抱 玉带缠腰】
前有玉带川流,后有青峰依靠,山环水抱,纳藏地脉之蕴,藏风聚气
【静水叠泉 万代流长】
引黑龙滩自然山水,取九寨沟天池意境,以石、林、水三大要素,构建叶香林独特生态景观
【坐北朝南 惠风和畅】
建筑布局南北通透,四季享水上东南风,焕然一新
建筑-园林价值
独门独院设计,构筑街巷礼制格局,融合现代建筑技术,将天地藏于一院。
【恍若画中行 平江苏园格局】
脉承园林之大成,以苏园意蕴,打造“一环一心两轴四苑”园林布局,实现从坊巷到坊苑,可居、可游、可赏。
【枕水阡陌里 好似梦回江南】
“院巷街坊”中式街巷设计,引水入园,梦回江南。
【东方暮色中 一派清雅中国】
黛灰、鸦青、月白,尽显传统意境宅院。
户型鉴赏
【潋雨】 建面约108㎡
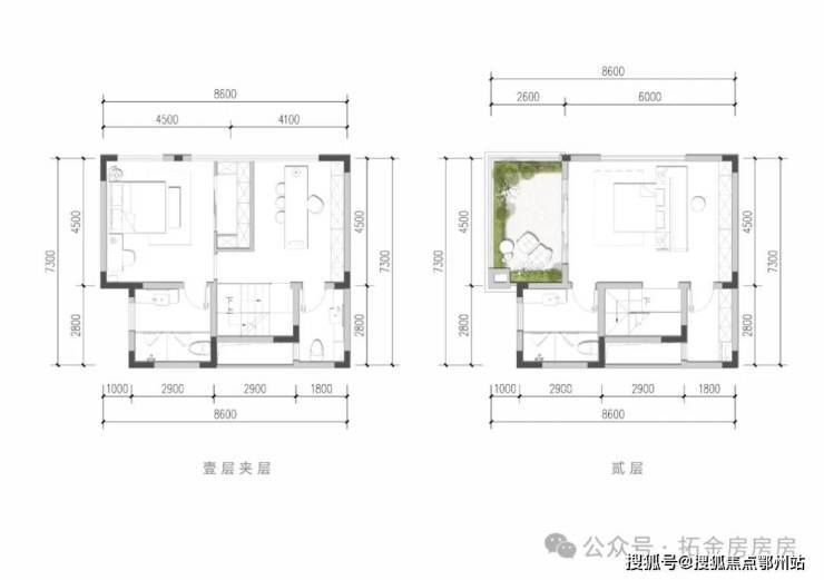
【养云】建面约122m²
【见山】 建面约138㎡
本宣传资料所涉宣传内容有不具体性和不明确性,仅作为宣传推广使用,不在任何意义上构成开发商的承诺与要约,具体以政府审定的规划设计文件及《商品房买卖合同》的约定为准。开放商:四川科兴亚置业有限公司
中铁叶香林售楼处电话:400-152-4009【售楼中心】中铁叶香林官方售楼处电话:400-152-4009【售楼处电话/地址】成都中铁叶香林售楼处电话:400-152-4009【官方认证】售楼中心24小时热线电话
声明:本文由入驻焦点开放平台的作者撰写,除焦点官方账号外,观点仅代表作者本人,不代表焦点立场。
