新希望D10天元售楼处电话:400-112-0302【售楼中心】新希望D10天元项目位于二七滨江,占地面积2.35万方,总建面14.9万方,包含住宅、商业、幼儿园等,预计2025年7月交房,均价45000-49000元/㎡,精装交付。
新希望D10天元
新希望D10天元售楼处电话:400-112-0302【售楼中心】
咨询高峰期请耐心等待,预约来电尊享内部优惠,专业一对一热情服务,让您用专业眼光去买房。
楼盘整体数据
新希望D10天元占地面积约2.35万方,总建面约14.9万方,容积率6.34,住宅共约490户,机动车停车位1391个,车位比约1:2.84。包含4栋大平层住宅和一栋商业,以及1所幼儿园。

开发阶段:D10天元住宅所有楼栋均已拿证,目前3号楼售罄,在售1、2、5号楼,即将推出D-ONE建面约116-500平奢装商业。

项目鸟瞰和楼栋分布图

新希望在二七滨江共拿了2块地,是分开的,规划总建面约66万方,包含甲级写字楼、五星酒店、服务型商业、公寓、住宅等多重业态,也是二七滨江的商业配套。

新希望地块位置示意图
新希望D10天元
新希望D10天元售楼处电话:400-112-0302【售楼中心】
咨询高峰期请耐心等待,预约来电尊享内部优惠,专业一对一热情服务,让您用专业眼光去买房。
开发商:武汉锦府置业有限公司
物业:新希望物业服务集团有限公司武汉分公司
产品类型:住宅
产权年限:70年
物业费:3.84元/平米/月
水费:民水
电费:民电
交房时间:2025年7月30日
交房标准:精装
在售情况:180-210-265㎡
均价:45000-49000元/㎡
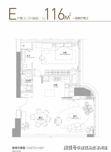
户型图展示:




新希望D10天元
新希望D10天元售楼处电话:400-112-0302【售楼中心】
咨询高峰期请耐心等待,预约来电尊享内部优惠,专业一对一热情服务,让您用专业眼光去买房。


D-one户型图

新希望D10天元
新希望D10天元售楼处电话:400-112-0302【售楼中心】
咨询高峰期请耐心等待,预约来电尊享内部优惠,专业一对一热情服务,让您用专业眼光去买房。

D-one样板间



区位与交通
区位:
新希望D10天元位于解放大道与长沙路交汇处,楼市划分属于二七滨江商务区核心,也叫汉口滨江国际商务区核心区,行政划分属于江岸区,位于内至二环之间。
作为武汉唯一被冠以“国际”之名的商务区,规划有大量商业商务用地,引进各大企业以及金融上下游产业,目前新希望华中区域总部(在建中)、周大福金融中心(在建中)、中信泰富、中诚信(在建中)等世界500强企业盛汇于此,发展潜力非常大。

项目区位图
交通出行:
自驾:小区西面临解放大道,北面是二环线,南面约公里就可以上内环线了,周边都是一些重要主干道或快速路。
沿解放大道向南就是汉口核心,在黄浦立交有上下武汉长江二桥(内环线)的匝道,可以直达武昌滨江商务区以及徐东、中北路等商圈。从长沙路右转旁边就是上二七长江大桥的匝道,可以很快进入二环线武昌段,项目到武昌核心也超级快。

交通示意图
新希望D10天元
新希望D10天元售楼处电话:400-112-0302【售楼中心】
咨询高峰期请耐心等待,预约来电尊享内部优惠,专业一对一热情服务,让您用专业眼光去买房。
地铁方面:项目距离轻轨1号线徐州新村站约300米,在二七路站可与在建的10号线一期换乘,约3站路可在黄浦路站与8号线换乘。

商业上,前面讲过,小区自带大量商业规划,主要是商务办公、酒店、公寓类,购物的话,距离小区约900米是在建的周大福金融中心,规划有约33万方大型购物广场。
另外,项目距离武汉天地商圈约3公里也非常近。沿解放大道自驾可以直达江汉路、国广商圈。

周大福金融中心效果图

武汉天地商业街图片来源于网络
教育上,小区自带一所幼儿园,长春街三小与小区隔着一条长沙路,过马路就到了,周边小区对口该学校,另外,在小区另一侧二七长江大桥和解放大道交汇处就是在建的七一系初中,以后大概率对口该学校。

医疗上,项目距离中部战区总医院(161医院)约2.5公里,还可沿解放大道自驾到同济、协和。

休闲娱乐上,小区内部配有宴会厅、会客厅,业主商务接待更方便,还有健身房、游泳池等,方便日常运动。



项目沿长沙路向东直走约400多米就可以到达江滩公园,该段是花海和粉黛乱子草等,开花的季节非常美。


新希望D10天元
新希望D10天元售楼处电话:400-112-0302【售楼中心】
咨询高峰期请耐心等待,预约来电尊享内部优惠,专业一对一热情服务,让您用专业眼光去买房。
郑重承诺:此房源信息真实有效,开发商直属全程营销策划,中介勿扰如有问题欢迎来电咨询,来电即可享受买房优惠!
1、本资料为要约邀请,不作为要约或承诺;买卖双方的权利义务以双方签订的《商品房买卖合同》及其补充协议、附件等书面文件为准;相关宣传内容不排除因政府相关规划、规定及出卖人分期规划、未能控制等原因发生变化;出卖人将!不定期对宣传材料进行修改,敬请留意最新资料。
2、图片来源于网络,仅作为推广示意使用;如涉及版权使用,请与我司联系。