周庄天润尚院较新楼盘详情不容错过!
扫描到手机,新闻随时看
扫一扫,用手机看文章
更加方便分享给朋友
天润尚院
售楼处:400-0000-460转5558
【温馨提示:看房请提前线上预约】
地处古镇周庄,周庄自古以来被誉为“水乡泽国”,以河成街街桥相连,依河筑屋,水镇一体,有“中国排名前列水乡”的美誉,全球闻名。吴侬软语,昆曲悠远,小桥流水人家,似诗如画。
项目简介
▼
江南水乡,周庄古镇旁,临湖别墅,较低的价格,较好的位置!
单价:14500/㎡
总价:约200万
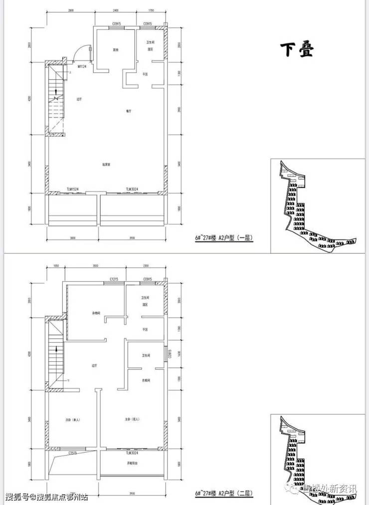
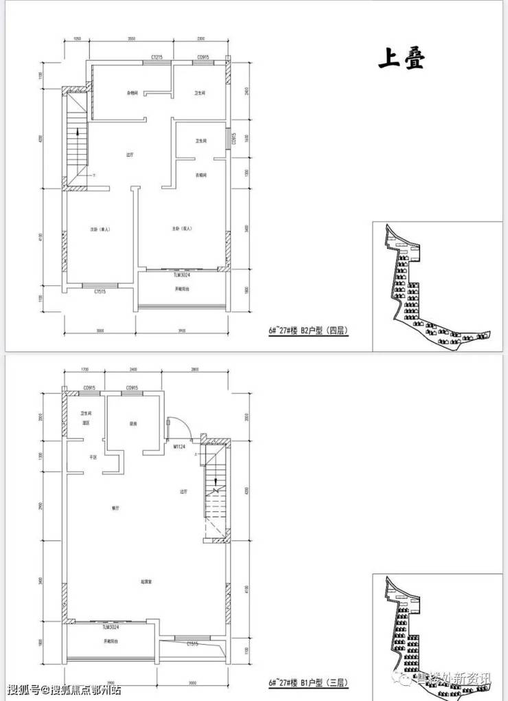
类型:叠墅
电梯:上叠带电梯
总高:总高4层
绿化率:40%
容积率:1.01
得房率:90%
开发商:昆山川水房地产置业有限公司
物业费:3元/㎡
上叠面积:146㎡-147㎡
下叠面积:145.70㎡
天润尚院
售楼处:400-0000-460转5558
赠送面积:叠加阳台不封,算一半面积
露台面积:上叠只有阳台
周庄,享誉世界的“排名前列水乡”,昆山市5A级风景区周庄古镇,沉淀着历史的韵味。天润尚院位于5A级风景区周庄古镇板块,坐拥2500亩稀缺水景资源,全现代中式院墅,低密度容积率,高绿地率,无论是休闲度假抑或是自住颐养,都能满足要求。
户型鉴赏:
项目区位
▼
花园面积:常规16.25,有19套花园40㎡以上
交房时间:2024年4月30号
项目地址:周庄镇周商公路1号
物业类型:别墅
装修标准:毛坯
物业公司:上海同进物业服务有限公司
占地面积:167445㎡
建筑面积:110033㎡
周边配套
商业实力:好又多、世纪联华、华润万家超市、昆山农村商业银行周庄支行、中国农业银行周庄分行、邮政储蓄银行周庄支行、周庄镇邮局。
教育实力:周庄中心幼儿园、周庄小学、周庄中学、苏州大学应用技术学院
休闲实力:滨湖公园、1.5公里环湖慢跑道,纯天然健身实力场地。城市农场路远人多?私家农场,让你体验农家田园趣味!更有私人码头、美国超4星斯凯酒店管家贴心服务等高级配备。
声明:本文由入驻焦点开放平台的作者撰写,除焦点官方账号外,观点仅代表作者本人,不代表焦点立场。
