丰隆城市中心
丰隆城市中心售楼处电话:400-112-0302【售楼中心】
咨询高峰期请耐心等待,预约来电尊享内部优惠,专业一对一热情服务,让您用专业眼光去买房。
项目案名正式发布,为丰隆海纹中心!最近项目也在大悦城正式公开了城市展厅!
丰隆海纹中心,即,苏地2021-WG-65号地块,位于相城区高铁新城水景路西、富翔路南,是2021年11月24日,高融置业以底价32162万元竞得,成交楼面价1244元/平。

项目的地块用途为商住混合用地,占地面积51691平,容积率5.0。根据要求,其住宅部分为公寓式住宅,且平均建筑高度需满足100米以上,住宅装标为2500元/平。
平面图上来看,项目将打造一栋50F超塔,为办公和酒店和5栋45F住宅。


丰隆城市中心
丰隆城市中心售楼处电话:400-112-0302【售楼中心】
咨询高峰期请耐心等待,预约来电尊享内部优惠,专业一对一热情服务,让您用专业眼光去买房。
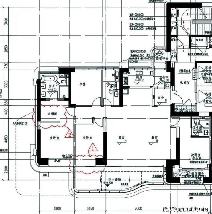
本次公示的是1#的平面图,一梯两户设计,只有种4房3卫设计。
八、十、十二层平面图

4房2厅3卫

4房2厅3卫设计,南向约7米大横厅,主卧开间3.8米,南向双卧室套房设计,主卧室带衣帽间和四段式卫浴间,南次卧则是带暗卫和封闭阳台。北向厨房带工作间,且为双入户设计,两条归家动线!值得关注的是,南向超大空中庭院,这也是个第四代住宅!
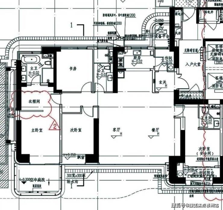
一层平面图

4房2厅3卫

丰隆城市中心
丰隆城市中心售楼处电话:400-112-0302【售楼中心】
咨询高峰期请耐心等待,预约来电尊享内部优惠,专业一对一热情服务,让您用专业眼光去买房。
与上个户型基本一样,主要差别就是空中庭院是在主卧里面!
根据此前官宣,该项目将由CDL新加坡城市发展集团打造。这也是丰隆城市中心的开发商。

丰隆超高层综合体项目位于苏州高铁新城中部片区,由新加坡丰隆集团子公司新加坡城市发展有限公司开发建设,计划总投资30亿元人民币,集高端酒店、写字楼、住宅于一体,其中包括一座高度约280米的超高层建筑。项目预计于2029年初完工,致力于建设成为苏州高铁新城的新地标。

家门口百亿配套的价值赋能:
周边久光百货、时代广场、在建的苏州中环广场等 百万方地标级商圈环伺,同时自带商业综合体丰隆汇、中国首家M SOCIAL苏州千绣悦酒店,形成 “5分钟顶级生活圈”。

湖岸线约500米,极致稀缺的黄金区位:

出售房源均位于12-32层,建筑面积约55-107㎡臻稀资产,一席一定制,本次可售户型分布如下:

丰隆城市中心
丰隆城市中心售楼处电话:400-112-0302【售楼中心】
咨询高峰期请耐心等待,预约来电尊享内部优惠,专业一对一热情服务,让您用专业眼光去买房。
郑重承诺:此房源信息真实有效,开发商直属全程营销策划,中介勿扰如有问题欢迎来电咨询,来电即可享受买房优惠!
1、本资料为要约邀请,不作为要约或承诺;买卖双方的权利义务以双方签订的《商品房买卖合同》及其补充协议、附件等书面文件为准;相关宣传内容不排除因政府相关规划、规定及出卖人分期规划、未能控制等原因发生变化;出卖人将!不定期对宣传材料进行修改,敬请留意最新资料。
2、图片来源于网络,仅作为推广示意使用;如涉及版权使用,请与我司联系。