信达·上海院子信达·上海院子售楼处电话:400-112-0302【售楼中心】
咨询高峰期请耐心等待,预约来电尊享内部优惠,专业一对一热情服务,让您用专业眼光去买房。
「信达泰禾上海院子」
杨浦新江湾城国际社区
地上面积989.55㎡ 地下面积663.52㎡
联排合院别墅 仅有两套(新房) 售价8915万
售楼处线上火热预约

项目基本信息

新江湾是上海传统豪宅区,毗邻五角场城市副中心,拥有9.45平方公里的原生湿地以及约15万㎡的新江湾湿地公园生态稀缺资源。 【信达泰禾·上海院子】位于新江湾城核心位置,家门口就是10号线殷高东路站,步行可达。

【上海院子】独特的院落式社区打造,融合了 “院子系”特点、福州三坊七巷和上海弄堂形制,规划了 “三街九坊十八巷”。且以 “大门、坊门、院门、宅门”四进系统层层递进。项目精益求精,如吊顶天花雕刻的是龙纹和祥云的图案,寓意吉祥安康。

信达·上海院子
信达·上海院子售楼处电话:400-112-0302【售楼中心】
咨询高峰期请耐心等待,预约来电尊享内部优惠,专业一对一热情服务,让您用专业眼光去买房。

每个长盛不衰的家族,皆有优良的家风相传。每个中国人的家风,总离不开一座院墅。一方土地,一方围合,一方生活,世代家风传承。【泰禾信达上海院子】——经过多年沉淀和过硬的口碑,已经成为新中式豪宅的代表作。



【上海院子】为业主提供了社区活动中心,自带约3600平方会所,面宽约75米室内外双泳池、健身房、spa房,咖啡吧、vip室等...足不出户让业主享受7星级高级定制服务。

信达·上海院子
信达·上海院子售楼处电话:400-112-0302【售楼中心】
咨询高峰期请耐心等待,预约来电尊享内部优惠,专业一对一热情服务,让您用专业眼光去买房。

VIP影院▼

健身中心,瑜伽中心▼

室内恒温泳池▼

VIP会客厅,幼托中心等▼


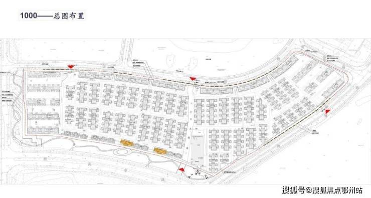
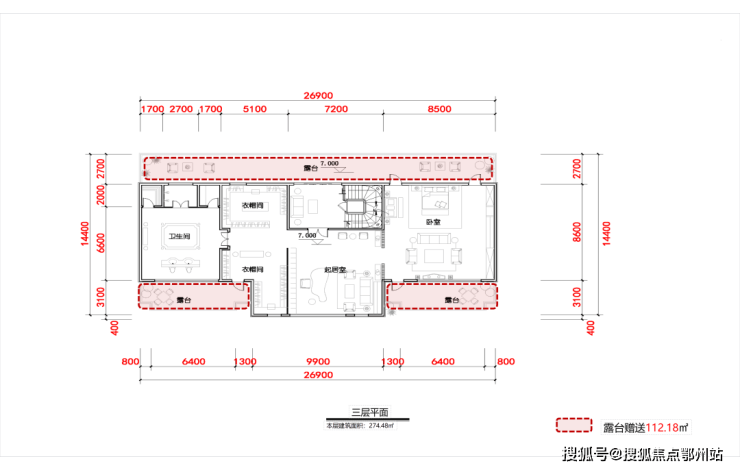
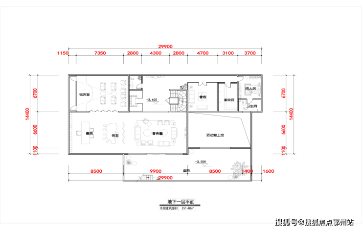
项目在售房源户型图
【信达泰禾·上海院子】
每个长盛不衰的家族,皆有优良的家风相传。
每个中国人的家风,总离不开一座院墅。
一方土地,一方围合,一方生活,世代家风传承。
共2套联排别墅,一手毛坯现房
地上面积989.55㎡,地下面积663.52㎡

信达·上海院子
信达·上海院子售楼处电话:400-112-0302【售楼中心】
咨询高峰期请耐心等待,预约来电尊享内部优惠,专业一对一热情服务,让您用专业眼光去买房。

在售房源户型图▼





信达·上海院子
信达·上海院子售楼处电话:400-112-0302【售楼中心】
咨询高峰期请耐心等待,预约来电尊享内部优惠,专业一对一热情服务,让您用专业眼光去买房。

装修建议示意图▼




信达·上海院子
信达·上海院子售楼处电话:400-112-0302【售楼中心】
咨询高峰期请耐心等待,预约来电尊享内部优惠,专业一对一热情服务,让您用专业眼光去买房。


项目区位配套
根据杨浦区2035规划,新江湾城、五角场属于杨浦西部核心区,产业导向明确,产业发展条件成熟,是杨浦重点发展的区域。

作为新江湾城重磅亮相的新盘,项目在享受区域发展红利的同时,周边也有着完善配套,生活便利!

图片来源于网络
新江湾是上海传统豪宅区,毗邻五角场城市副中心,拥有9.45平方公里的原生湿地以及约15万方的新江湾湿地公园生态稀缺资源。

图片来源于网络
交通配套方面:家门口就是10号线殷高东路站。一线(10号线)、一桥(杨浦大桥)、两环(中环&内环)、两隧(翔殷路&军工路隧道)构成立体交通网络。

位置示意图
信达·上海院子
信达·上海院子售楼处电话:400-112-0302【售楼中心】
咨询高峰期请耐心等待,预约来电尊享内部优惠,专业一对一热情服务,让您用专业眼光去买房。
【商业配套方面】:步行可快速到达约90万方的铁狮门的商业圈,车行可快速到达五角场商圈。

图片来源于网络
【教育资源方面】:周边有中福会幼儿园、延吉幼儿园(区重点)、同济第一附中(市重点)等。同时距上海音乐学院实验中小学(市重点)距离仅约800米。

图片来源于网络
医疗资源方面:周边有3家三甲医院,上海肺科医院、东方肝胆外科医院、上海长海医院,共同保障家人健康。

信达·上海院子
信达·上海院子售楼处电话:400-112-0302【售楼中心】
咨询高峰期请耐心等待,预约来电尊享内部优惠,专业一对一热情服务,让您用专业眼光去买房。
郑重承诺:此房源信息真实有效,开发商直属全程营销策划,中介勿扰如有问题欢迎来电咨询,来电即可享受买房优惠!
1、本资料为要约邀请,不作为要约或承诺;买卖双方的权利义务以双方签订的《商品房买卖合同》及其补充协议、附件等书面文件为准;相关宣传内容不排除因政府相关规划、规定及出卖人分期规划、未能控制等原因发生变化;出卖人将!不定期对宣传材料进行修改,敬请留意最新资料。
2、图片来源于网络,仅作为推广示意使用;如涉及版权使用,请与我司联系。