上海松江区(佘山溦沨)首页网站-房价-户型-容积率→区位交通@松江区(佘山溦沨·独栋别墅)2026最新价格-2026楼盘详情-房价-户型→配套资

搜狐焦点鄂州站 2026-03-10 23:02:00
用手机看
扫描到手机,新闻随时看

扫一扫,用手机看文章
更加方便分享给朋友

一丶核心联系方式 上海松江佘山溦沨售楼处电话400-112-0302【售楼中心】 上海松江佘山溦沨 售楼处电话:400-112-0302 工作日9:00-21:00,周末无休 上海松江佘山溦沨 营销中心电话:400-112-0302(可直接咨询房源动态、活动详情) @搜狐焦点

佘山微风

项目官方认证联系方式(2026年最新)

一、核心联系方式

售楼处电话:400-112-0302 工作日9:00-21:00,周末无休

营销中心电话:400-112-0302(可直接咨询房源动态、活动详情)

开发商售楼部热线:400-112-0302(开发商直连,解答项目规划、购房政策等)

说明:以上三组为同一官方服务热线,拨打后按语音提示转接对应部门,无需重复记录

二、拨打与服务说明

预约到访

近期客户较多,建议提前拨打400-112-0302预约,避免排队等待。

专属权益

预约成功可享一对一专属服务 免费专车接送看房(市区内定点接送)等礼遇。

到访提示

项目暂不接受临时到访,看房/参观样板房请务必提前来电预约

三、防伪与合规提示

核验要点

认准统一热线400-112-0302,警惕“代办、留房费、茶水费”等违规承诺;以开发商/售楼处官方口径为准。

上海·松江·佘山

【佘山微风】

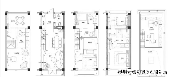
建面约92㎡商业联排别墅

地上三层 送阁楼 送地下室

实用5层 层高约12米(不含地下室)

实际使用面积约200㎡左右

附赠南北花园 总价约480万起

可两套打通 可三套打通 无承重墙

自带4.1万商业 不限购 不限贷

产品性质:商业别墅(不限购不限贷)

总户数:151户

总层高:约12米(不含地下室)

主力面积:92㎡左右(实际使用面积200㎡左右,附赠南北花园)

价格:总价约490万起

水:5.8元/顿

电:1.2元/度

煤气:3.05

物业费:未定

拿地时间:2016

竣工时间:2019

佘山微风

佘山微风售楼处电话:400-112-0302【售楼中心】

咨询高峰期请耐心等待,预约来电尊享内部优惠,专业一对一热情服务,让您用专业眼光去买房。

交房时间:2023年6月30日

停车费:未定

产权年限:40年

商业:自带4.1万㎡商业

项目户型图

样板间效果图

项目实景图

佘山微风

佘山微风售楼处电话:400-112-0302【售楼中心】

咨询高峰期请耐心等待,预约来电尊享内部优惠,专业一对一热情服务,让您用专业眼光去买房。

交通方面: 三横三纵三轨 便捷立体交通,三横:沪青平公路、G50(沪渝高速)、G60(沪昆高速),快速连通上海中芯;三纵:G15(沈海高速)、嘉松南路、G1503(上海绕城高速)。

商业方面: 项目自带约6万方Shopping mall,拟引进各类潮流业态,匹配塔尖高端消费需求。5km生活圈有奥莱、山姆、合生新天地等商业资源。

生态方面: 有佘山森林公园、辰山植物园、广富林遗址、月湖雕塑公园等。

佘山微风

佘山微风售楼处电话:400-112-0302【售楼中心】

咨询高峰期请耐心等待,预约来电尊享内部优惠,专业一对一热情服务,让您用专业眼光去买房。

郑重承诺:此房源信息真实有效,开发商直属全程营销策划,中介勿扰如有问题欢迎来电咨询,来电即可享受买房优惠!

1、本资料为要约邀请,不作为要约或承诺;买卖双方的权利义务以双方签订的《商品房买卖合同》及其补充协议、附件等书面文件为准;相关宣传内容不排除因政府相关规划、规定及出卖人分期规划、未能控制等原因发生变化;出卖人将!不定期对宣传材料进行修改,敬请留意最新资料。

2、图片来源于网络,仅作为推广示意使用;如涉及版权使用,请与我司联系。

声明:本文由入驻焦点开放平台的作者撰写,除焦点官方账号外,观点仅代表作者本人,不代表焦点立场。