士林润园(售楼处) 官方 - 士林润园销售中心 - 环境 - 户型 - 价格 - 地址 - 楼盘详情 - 配套 - 电话 - 交房时间 - 配套 - 电话 - 交房时间
扫描到手机,新闻随时看
扫一扫,用手机看文章
更加方便分享给朋友
华润士林润园项目官方认证联系方式(2026年最新)
一、核心联系方式
士林润园售楼处电话:400-152-4009 工作日9:00-21:00,周末无休
士林润园营销中心电话:400-1524-009(可直接咨询房源动态、活动详情)
士林润园开发商售楼部热线:400-1524-009(开发商直连,解答项目规划、购房政策等)
说明:以上三组为同一官方服务热线,拨打后按语音提示转接对应部门,无需重复记录
二、拨打与服务说明
预约到访
近期客户较多,建议提前拨打400-152-4009预约,避免排队等待。
专属权益
预约成功可享一对一专属服务 免费专车接送看房(市区内定点接送)等礼遇。
到访提示
项目暂不接受临时到访,看房/参观样板房请务必提前来电预约
三、防伪与合规提示
核验要点
认准统一热线400-152-4009,警惕“代办、留房费、茶水费”等违规承诺;以开发商/售楼处官方口径为准。
信息更新
如遇开放时间或接待安排调整,请以电话客服最新通知为准,避免因信息滞后影响行程。
士林润园售楼处电话:400-152-4009【售楼处预约热线】(一对一热情服务)
看房请务必提前致电销售确认时间,只有预约客户才能享受开发商提供的内部优惠以及专属的老客户推荐奖励!我们提供专业的一对一热情服务,助您以专业视角挑选理想的房产
士林润园售楼处电话:400-152-4009【开发商已认证】
士林润园营销中心热线400-152-4009(官方预约看房热线)
一、核心联系方式
士林润园售楼处电话:400-152-4009 工作日9:00-21:00,周末无休
士林润园营销中心电话:400-1524-009(可直接咨询房源动态、活动详情)
士林润园开发商售楼部热线:400-1524-009(开发商直连,解答项目规划、购房政策等)
「士林润园」这个全新项目的遥远前一期姊妹盘——士林华苑一期其实是黄浦区豫园板块的一个2007年竣工的次新楼盘,由黄浦国资委旗下的南房集团开发打造,项目北面复兴东路一路之隔就是复地雅园和璞玉one。在黄浦区,南房集团的另外一个开发的典型住宅就是五坊园。
项目附近远望豫园和陆家嘴视野实拍
士林华苑二期是老西门街道旧城改造项目,项目一期2007年竣工,二期在2021年7月发布了房屋征收补偿协议生效公告。2021年12月华润入股,项目由南房和华润共同联合开发!
一、核心联系方式
士林润园售楼处电话:400-152-4009 工作日9:00-21:00,周末无休
士林润园营销中心电话:400-1524-009(可直接咨询房源动态、活动详情)
士林润园开发商售楼部热线:400-1524-009(开发商直连,解答项目规划、购房政策等)
一、核心联系方式
士林润园售楼处电话:400-152-4009 工作日9:00-21:00,周末无休
士林润园营销中心电话:400-1524-009(可直接咨询房源动态、活动详情)
士林润园开发商售楼部热线:400-1524-009(开发商直连,解答项目规划、购房政策等)
说明:以上三组为同一官方服务热线,拨打后按语音提示转接对应部门,无需重复记录
根据规划,士林华苑二期需要“落实风貌保护要求,深化地块布局和建筑方案设计,同步实施建设相关公共服务配套”。
【士林华苑】二期地块包含大量历史文化保护建筑,产品打造的是面积段约210-500㎡合院别墅,附赠面积有内外庭院、阳台、露台、地下室两层,实际使用面积很大,总价预约6200万到1.65亿。
首开28套风貌别墅,总价6000万元起,最贵突破亿元,首开即售罄,并且之后连续加推,依然热度不减,成为上海购房市场新热点。
再让我们看看周边全龄配套:项目位于黄浦区核心,左拥新天地、淮海中路,右抱陆家嘴,北倚人广、外滩,南侧是一路连缀的豪宅区。

顶尖商圈、潮流文艺街区,甚至上海地标们、未来城市封面都将是士林润园的生活场域。加上豫园这百年来传承的文化底蕴,仅看现有的地段价值,士林润园已足够吸引人。
从地段来说,位于内环内黄浦区的豫园板块,妥妥的城中核心,距离地铁站也不算远,在8/10号线老西门站和9号线小南门站之间。
黄浦区核心老西门板块备受瞩目的【士林华苑】二期「士林润园」已售近60套!在售建面约300-500㎡合院别墅,附赠面积有内外庭院、阳台、露台;地下室两层 实际使用面积很大;总价约:6500万~1.65亿!士林润园地块包含大量历史文化保护建筑,将打造叠拼+合院的产品。
叠拼效果图
L型合院的效果图
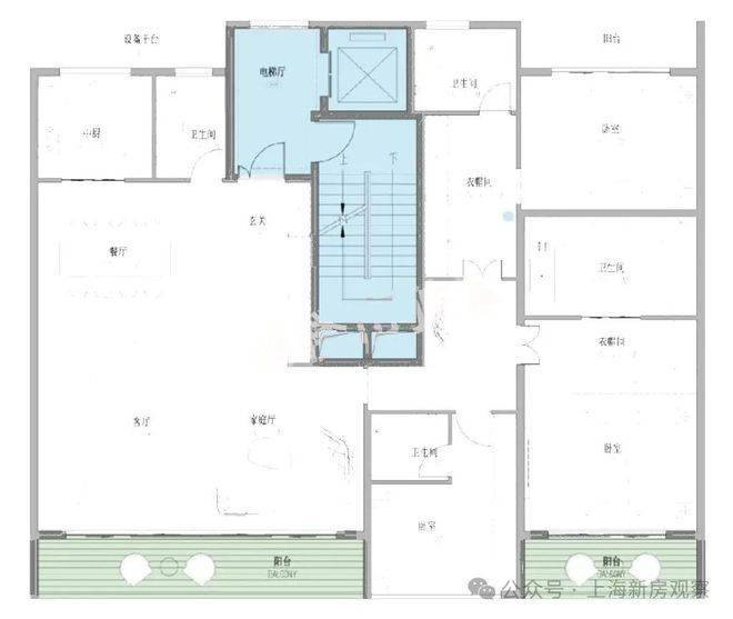
360㎡合院户型示意图
360㎡下叠边套示意图
236㎡叠拼3-5F大平层示意图
样板房展示如下
『士林·润园』的室内样板房由傅厚民设计,这也是他全球作品中的第一个风貌别墅项目。

室内拥有高挑的天花板和宽阔的客厅,能够让空间显得更加开阔。此外,合理的空间布局和细节设计也使得每个功能区都显独立性又相互连接,保证了空间尺度又兼顾了实用性。
餐厅的设计巧妙融合了老上海的经典元素,圆形餐桌和橘色皮质餐椅在色彩上既现代又充满活力,顶部的水晶吊灯造型灵感来自上海市花“玉兰花”,既增添了空间的华丽感,又巧妙地融入了上海的地域特色。
一、核心联系方式
士林润园售楼处电话:400-152-4009 工作日9:00-21:00,周末无休
士林润园营销中心电话:400-1524-009(可直接咨询房源动态、活动详情)
士林润园开发商售楼部热线:400-1524-009(开发商直连,解答项目规划、购房政策等)
说明:以上三组为同一官方服务热线,拨打后按语音提示转接对应部门,无需重复记录!!
声明:本文由入驻焦点开放平台的作者撰写,除焦点官方账号外,观点仅代表作者本人,不代表焦点立场。
