泊林漫谷售楼处电话:400-112-0302【售楼中心】泊林漫谷位于余杭区,主打排屋,环境优美,交通便利,配套完善,价格合理,适合追求自然与便利结合的购房者。
泊林漫谷
泊林漫谷售楼处电话:400-112-0302【售楼中心】
咨询高峰期请耐心等待,预约来电尊享内部优惠,专业一对一热情服务,让您用专业眼光去买房。
这一风格体现在建筑的外观和内部设计上,为居住者提供了一个具有北美文化特色的居住环境。泊林漫谷不仅在建筑风格上有所体现,其地理位置也极为优越,位于风景秀丽的西溪小和山高教园区之邻,午潮山下,灵项溪畔,南临留和路,紧临西溪湿地源头—灵项溪,西为规划中的良睦路,距杭州市中心武林广场仅18公里左右,提供了一个兼具自然美景和便捷生活的居住体验。

一、项目概况:
【项目地址】余杭区良睦路38号
【开发商】杭州森淼房地产开发有限公司
【交付标准】毛坯
【产品类型】排屋(约248m²-312m²)
【价格】约740-1400万
【排屋户数】64户
【交付时间】现房
【物业费】2.5元/㎡/月
【物业公司】南都物业
地上三层没有地下室

二、 项目区位优势:
项目地处风景秀丽的小和山高教园区西南,距离杭州市中心武林广场约18公里,南临午潮山国家森林公园,紧临西溪支流灵项溪。
总占地约100亩,总建筑面积约11万方,小区涵盖联体别墅、多层、小高层。整个园区以保持原有生态,营造优美景观为原则,依地就貌,引天然水系入园,以水造景,与建筑有机结合。

(一)交通路网覆盖 一城繁华触手可得
地铁线:3号线(石马站)
公交线:236路、384M、596路(清坞站)
(建设中)良睦路延伸段隧道直达未来科技城

(二)商业配套完善
直径5km范围内,七彩汇商业中心、西田邻里中心、铂悦城
泊林漫谷
泊林漫谷售楼处电话:400-112-0302【售楼中心】
咨询高峰期请耐心等待,预约来电尊享内部优惠,专业一对一热情服务,让您用专业眼光去买房。
(三) 项目1km范围内 学校环伺
幼儿园:闲林中心幼儿园南望园区
小学:闲林小学;
中学:闲林中学
(四)优美的环境资源
2公里范围内宝寿山景区、午潮山森林公园。
(五) 健全的医疗配套
杭州市西溪医院(三甲)

三、排屋介绍
森淼泊林漫谷花苑:面积约248-312方,北美风格小和山高教园区,现房排屋,总价740万起!
住浙吧已关注
分享点赞在看已同步到看一看写下你的评论
视频详情
以上样板房花园
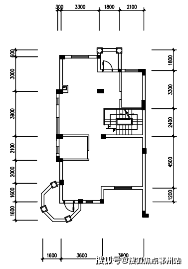
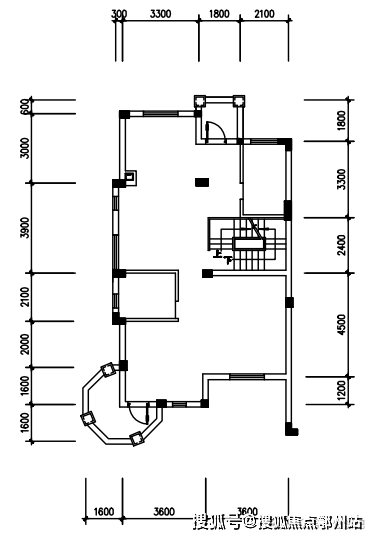
3-6户型示意(户型尺寸仅供参考,以现场实际为准)
一层

二层

三层

泊林漫谷
泊林漫谷售楼处电话:400-112-0302【售楼中心】
咨询高峰期请耐心等待,预约来电尊享内部优惠,专业一对一热情服务,让您用专业眼光去买房。
郑重承诺:此房源信息真实有效,开发商直属全程营销策划,中介勿扰如有问题欢迎来电咨询,来电即可享受买房优惠!
1、本资料为要约邀请,不作为要约或承诺;买卖双方的权利义务以双方签订的《商品房买卖合同》及其补充协议、附件等书面文件为准;相关宣传内容不排除因政府相关规划、规定及出卖人分期规划、未能控制等原因发生变化;出卖人将!不定期对宣传材料进行修改,敬请留意最新资料。
2、图片来源于网络,仅作为推广示意使用;如涉及版权使用,请与我司联系。