海威领界
海威领界售楼处电话:400-112-0302【售楼中心】
咨询高峰期请耐心等待,预约来电尊享内部优惠,专业一眼光对一热情,让您用专业眼光去买房
杭州滨江商铺海威领界,位于国家高新区(滨江区)核心地带,是浙江省资本密集、网红直播活跃、全国数字经济最强的区域。
这里不仅地理位置优越,交通便捷,更拥有丰富的商业配套和稀缺的江景办公楼资源,成为投资者和企业家们争相追捧的焦点。

一、项目信息

海威领界地处滨江核心,坐拥双地铁,4号线联庄站上盖,6号线伟业路站步行仅需5分钟。
项目周边交通网络发达,拥有城市主干道、地下快速路、桥梁和隧道等多种交通方式,轻松连接主城各处。
:T1写字楼建面约19000㎡ : 约100米(22层)
:3.9米
: 公区精装
咨询高峰期请耐心等待,预约来电尊享内部优惠,专业一眼光对一热情,让您用专业眼光去买房
5. 医疗健康:省儿保滨江区、浙二滨江院区、浙江中医药大学杭州滨江中医门诊部等
6. 书香沁润:周边集聚钱塘实验小学、浙江中医药大学、浙江警官学院、浙江商职院优质教育资源
四、项目优势

1. 地处滨江核心,地理位置优越,发展潜力巨大
2. 地铁上盖,交通便捷,提升商务效率
3. 稀缺江景办公楼,景观,提升企业形象
4. 丰富商业配套,满足员工及企业需求
5. 办公+模式,提供多样化办公空间
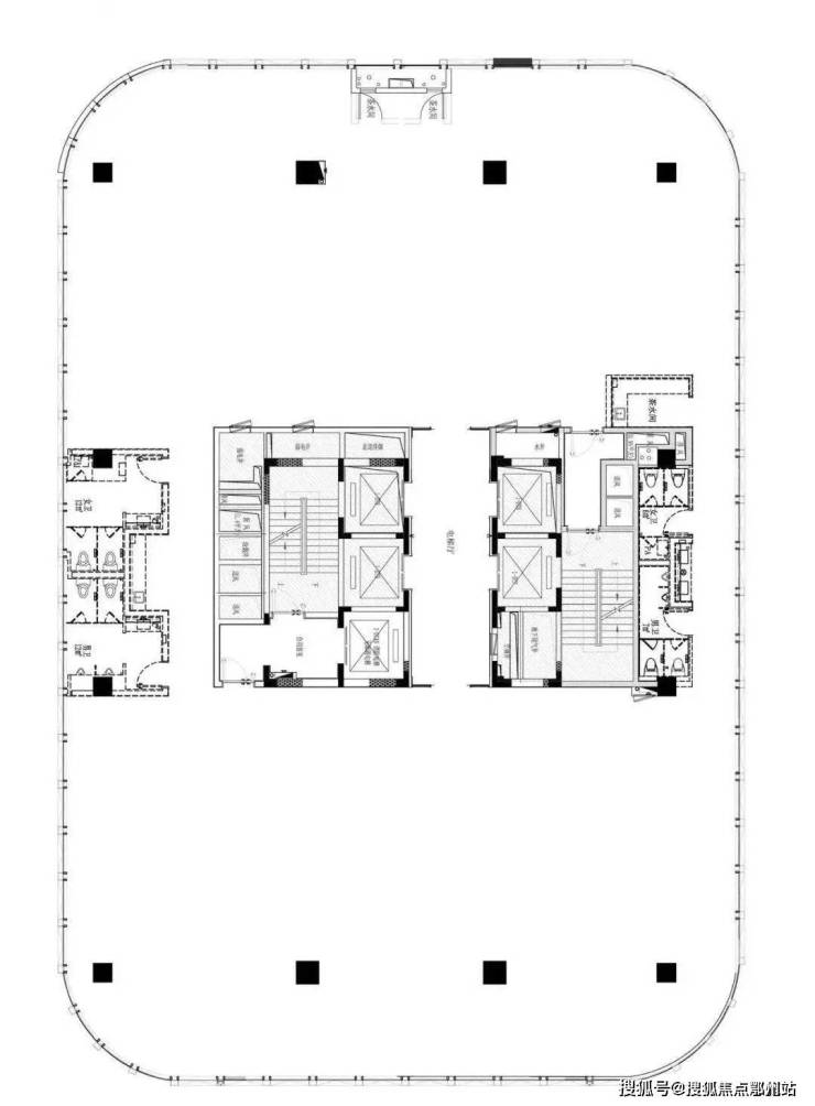
五、户型图及样板间

海威领界户型图和样板间设计独特,充分考虑了空间利用和舒适度,旨在为业主打造高品质的商务生活。户型图展示了不同面积段的办公空间,
满足不同企业的需求。样板间展示了现代简约的设计风格,空间宽敞,采光充足,让您直观感受到高品质的商务环境。
六、总结

杭州滨江商铺海威领界,以其地理位置、丰富的商业配套、稀缺的江景办公楼资源,成为滨江核心的商务地标。这里将为您带来高效便捷的办公体验,打造高品质的商务生活,是您投资创业的理想之选。


海威领界
海威领界售楼处电话:400-112-0302【售楼中心】
咨询高峰期请耐心等待,预约来电尊享内部优惠,专业一眼光对一热情,让您用专业眼光去买房
郑重承诺:此房源信息真实有效,开发商直属全程营销策划,中介勿扰如有问题欢迎来电咨询来电即可享受买房优惠!
1、本资料为要约邀请,不作为要约或承诺;买卖双方的权利义务以双方签订的《商品房买卖合同》及其补充协议、附件等书面文件为准;
相关宣传内容不排除因政府相关规划、规定及出卖人分期规划、未能控制等原因发生变化;出卖人将!不定期对宣传材料进行修改,敬请留意最新资料。
2、图片来源于网络,仅作为推广示意使用;如涉及版权使用,请与我司联系。