龙盛·福新里
龙盛·福新里售楼处电话:400-112-0302【售楼中心】
咨询高峰期请耐心等待,预约来电尊享内部优惠,专业一对一热情服务,让您用专业眼光去买房。
静安内环内 苏州河畔 苏河湾板块
龙盛福新里
天华建筑 梁志天 贝尔高林
业内顶尖团队倾情投入
斥资400亿重金打造
面积402-410㎡叠墅
赠送地下室、花园等 产证约600㎡+
总价7300-8800万

实景图

龙盛福新里开发商是龙盛置地,目前上海项目主要集中在静安区,以旧改为主。2015年与静安区政府签订框架协议,启动两个旧改项目,正是龙盛·福新里和龙盛华兴新城,两个项目总投资将近400亿元。

「福新里」位于静安内环内,位于共和新路以东、曲阜路以南、乌镇路以西、光复路以北,毗邻苏州河。南邻苏河一线,西依南北高架,得天独厚的区位条件,使得项目周边相关配套很成熟。
静安区2035规划

在静安、闸北合并之后,这片土地的城市更新速度加快,苏河湾板块在2016年的苏河湾十三五规划期间,将目标定位:“要重新拿回上海‘都市之心’的宝座”,在随后的“2035规划”中,苏河湾更是被布局为世界级中央活动区,未来将是城市封面的存在。 苏州河站位“一江一河”规划,对于上海来说,未来苏州河沿岸应当是比黄浦江更适宜居住的存在。

龙盛·福新里
龙盛·福新里售楼处电话:400-112-0302【售楼中心】
咨询高峰期请耐心等待,预约来电尊享内部优惠,专业一对一热情服务,让您用专业眼光去买房。
「龙盛福新里」处在静安内环区域,轨交1/8/12/13四轨交汇,内环高架、南北高架、南侧延安高架路都极为便利。

轨交线路
商业方面 附近的福新汇-1层到4层包含全生活业态,东侧华润苏河湾打造的中央公园中,地下部分全部为城市商业,约500米左右静安大悦城、1站人民广场、3站黄陂南路(步行约60米新天地)、3站静安寺,轨交10分钟内便有上海最大、最繁华的商圈。

静安大悦城 效果图
教育方面,惠灵顿幼儿园、市北中学、上海市静安区第三中心小学、上海市棋院实验小学、上海市向东中学等。

市北中学
医疗资源,周边3公里内,9家三甲医院,第一人民医院、第十人民医院、瑞金医院、复旦大学附属华东医院等。

瑞金医院
「龙盛福新里」距离苏州河直线距离约80米,前方无遮挡,建设之初就抬高了90公分,增加了观景楼层,也很好的保护了地区的私密性。
龙盛福新里 效果图



「龙盛福新里」邀请了三家知名的设计团队:天华建筑事务所、梁志天设计团队、贝尔高林,从整体的建筑、到户型装修、再到园林设计,都是行业内顶尖的团队打造。

龙盛福新里 效果图
龙盛·福新里
龙盛·福新里售楼处电话:400-112-0302【售楼中心】
咨询高峰期请耐心等待,预约来电尊享内部优惠,专业一对一热情服务,让您用专业眼光去买房。
自带约2000㎡的豪华会所和约1000㎡的社区泛会所,会所包含健身、泳池、游玩、洽谈区。

龙盛福新里 园林效果图
「龙盛福新里」项目的装修品牌,全部是国际一线的大牌,当代的卫浴龙头、劳芬卫浴、铂浪高的水槽、诺布雷萨的厨房、滨特尔的净水系统、美诺的厨电、旭格门窗······随便拿出来两件,都是豪宅标配。
「龙盛福新里」
龙盛福新里整个小区为高层和叠加别墅,总户数143户,容积率2.18,车位配比1:2.4,高层户型为建面约183-307㎡,叠加别墅建面约402-447㎡。


项目名称:龙盛·福新里
物业类别:普通住宅(70年)
绿化率:35%
容积率:2.18
开发商:上海北航置业发展有限公司
物业:第一太平戴维斯物业管理有限公司
交通:轨交1/8/12/13,南北高架、延安高架、内环高架
会所:2000㎡+1000㎡泛会所

龙盛福新里住宅部分总平图

龙盛·福新里
龙盛·福新里售楼处电话:400-112-0302【售楼中心】
咨询高峰期请耐心等待,预约来电尊享内部优惠,专业一对一热情服务,让您用专业眼光去买房。
样板房谍照独家首发:











龙盛·福新里
龙盛·福新里售楼处电话:400-112-0302【售楼中心】
咨询高峰期请耐心等待,预约来电尊享内部优惠,专业一对一热情服务,让您用专业眼光去买房。
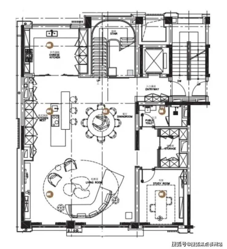
户型图:


龙盛·福新里
龙盛·福新里售楼处电话:400-112-0302【售楼中心】
咨询高峰期请耐心等待,预约来电尊享内部优惠,专业一对一热情服务,让您用专业眼光去买房。
郑重承诺:此房源信息真实有效,开发商直属全程营销策划,中介勿扰如有问题欢迎来电咨询,来电即可享受买房优惠!
1、本资料为要约邀请,不作为要约或承诺;买卖双方的权利义务以双方签订的《商品房买卖合同》及其补充协议、附件等书面文件为准;相关宣传内容不排除因政府相关规划、规定及出卖人分期规划、未能控制等原因发生变化;出卖人将!不定期对宣传材料进行修改,敬请留意最新资料。
2、图片来源于网络,仅作为推广示意使用;如涉及版权使用,请与我司联系。