佘山微风
佘山微风售楼处电话:400-112-0302【售楼中心】
咨询高峰期请耐心等待,预约来电尊享内部优惠,专业一对一热情服务,让您用专业眼光去买房。
佘山芯内,百变空间
别墅精品 皆是向往!
【佘山溦沨】全新发售!
主力92㎡左右,得房率200%
使用200㎡左右,附赠南北花园
不限购!总价约480万起
50年商业产权 宜居 宜投资

【让佘山的一缕微风,吹吹生活的褶皱】
后疫情时代,出境游、出省游存在诸多不安全因素。 囿于时空的限制,城市里的动物们,亟需一处自然场域放放风,抛却内心噪音,回归自我——近两年,近郊游微度假模式崛起,成为一种主流的休闲生活方式。
根据调研数据显示, 佘山、 崇明岛 、滴水湖等成为上海近郊游的热门阵地,近郊民宿市场迎来机遇。

佘山溦沨,匿于佘山连绵绿脉之中,离尘不离城, 151席精筑度假屋,静候您开场惬意自如的第二人生。

周边高配云集 高奢度假日常,天赋佘山自然大境; 佘山,森林覆盖率约86%,负氧离子含量约3000个/m³,上海全境PM2.5指数最低板块之一;不仅是上海近郊游的最佳去处,也是峰层人士云集的首选之地

* 佘山森林公园·图片源自网络
5km生活圈 繁华静谧两相宜
生态资源:佘山森林公园、辰山植物园、 广富林遗址 、月湖雕塑公园
休闲娱乐:欢乐谷、佘山高尔夫、索菲特大酒店、赵巷体育公园
高端购物:奥莱、山姆、合生新天地
自建商业:项目自带约6万方Shopping mall,拟引进各类潮流业态,匹配塔尖高端消费需求

* 佘山高尔夫 · 图片源自网络
三横三纵三轨 便捷立体交通
三横: 沪青平公路、G50(沪渝高速)、G60(沪昆高速),快速连通上海中芯
三纵: G15(沈海高速)、嘉松南路、G1503(上海绕城高速),畅行长三角
三轨:地铁9/12号线佘山站/洞泾站 ,4站抵达闵行商圈,10站即达徐家汇商圈,快速直达淮海中路等上海繁华核芯商圈; 松江有轨电车T1、T2 区域内绿色通行,多重公交线路,与城芯无界互联

佘山溦沨 独立产权奢牌度假屋 6大心动理由
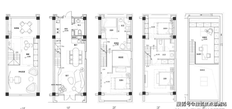
1.使用面积约200-3200㎡,可自由分割,灵活组合,打造百变空间,企业总部、私人会所、超级民宿……满足不同需求。

2.总价约499万起,约1/5周边独栋别墅总价,奢享同品级四层半高端奢牌度假屋。


3.打造约500㎡中心花园,配备星级户外吧台,可打造沉浸式开放会所,亲子休娱、音乐派对、私人酒会、露天BBQ......享你所想;每户带前庭后院。

佘山微风
佘山微风售楼处电话:400-112-0302【售楼中心】
咨询高峰期请耐心等待,预约来电尊享内部优惠,专业一对一热情服务,让您用专业眼光去买房。
* 项目景观效果图

4.可自住·可出租 能赚能玩的资产

5.席位臻贵,准现房,错过难再有。

佘山溦风
产品性质:商业别墅(不限购不限贷)
主力面积:92㎡左右(实际使用面积200㎡左右,附赠南北花园)
130㎡户型待加推
总户数:151户
总层高:约12米(不含地下室层高)
中间套报价:550万(特价:499万)
边套报价:600万
一手新房、毛坯交付(2023年9月底交房)
首付:5.5成
商业:自带4.1万㎡商业



佘山微风
佘山微风售楼处电话:400-112-0302【售楼中心】
咨询高峰期请耐心等待,预约来电尊享内部优惠,专业一对一热情服务,让您用专业眼光去买房。
郑重承诺:此房源信息真实有效,开发商直属全程营销策划,中介勿扰如有问题欢迎来电咨询,来电即可享受买房优惠!
1、本资料为要约邀请,不作为要约或承诺;买卖双方的权利义务以双方签订的《商品房买卖合同》及其补充协议、附件等书面文件为准;
相关宣传内容不排除因政府相关规划、规定及出卖人分期规划、未能控制等原因发生变化;出卖人将!不定期对宣传材料进行修改,敬请留意最新资料。
2、图片来源于网络,仅作为推广示意使用;如涉及版权使用,请与我司联系。