易辰.江南大院
易辰.江南大院售楼处电话:400-112-0302【售楼中心】
咨询高峰期请耐心等待,预约来电尊享内部优惠,专业一对一热情服务,让您用专业眼光去买房。
理想生活 不过一席江南洋房
杭城西 地铁旁 易辰·江南大院二期
约90-120㎡城市森系洋房 倾城热销中

👉临安青山湖板块、滨湖新城&青山湖科技城双核心,尽享国际湖城繁华
🌟倚山而建,近邻青山湖国家森林公园、青山湖的天然资源
🌟地铁16号线八百里站仅约800米,七站直达绿汀路

🌟紧邻科技大道城市主脉,一脉链接未来科技城,畅达主城芯
🌟低密度住宅、杭城不可多得的中式小院、森林叠排及现代小高层
🌟不限贷、不限购,投资自住一流

【区位配套】
🌳休闲配套:
青山湖国家森林公园,面积64.5平方公里,其中水域面积10平方公里,四面环山,生态环境良好。湖区生活着240多种野生动物,湖之北有100万平方的水上森林,原生山林覆盖率高达82%,拥有超高负氧离子含量。是名副其实的绿肺氧吧。
项目距青山湖国家森林公园环湖绿道主入口之一约1.3公里,闲暇时带上家人即可随时开启环湖游。

🌟【医疗配套】
🏥临安区中医院、规划三甲医院青山湖院区
🌟【商业配套】
🏦缤纷城(在建)、星汇天地、50万方滨湖商业综合体、青山湖宝龙广场
🌟【市政配套】
🏬临安区行政服务中心、城市客厅(在建)
🌟【教育配套】
🏫青山湖科技城育才小学、青山湖科技城第二小学、杭州第十四中学青山湖学校、临安中学、浙江农林大学
🚗【交通配套】
道路:科技大道快速路、102省道、留石快速路。科技大道旁,向东直连文一西路快速路(在建),开通后直达未来科技成和杭州城西,且畅抵杭州城东。
🚇【地铁】距离16号线八百里站仅800米,2站直达未来科技城(南峰站),7站可抵绿汀路站(浙一余杭总院),与3/5号线无缝换乘
易辰·江南大院二期项目介绍
【项目名称】:易辰·江南大院二期
【项目地址】:临安青山湖锦北街道
【建筑面积】:68239平方米
【容积率】:≤1.10
【主力户型】建筑面积约90-120㎡城市森系洋房
【装修】:毛坯交付

【产权】:70年
【销售状态】:在售
【项目优势】
🏠洋房组团:
位于整盘地势最高点,整体依山而建、与南面地势落差较大,日照采光优秀、南向瞰景视野极佳。

洋房组团实景图
🌳环境优势:
园区内部绿化覆盖率较高,在坡地建筑设计的加持下,整体园区景观设计更富层次感;除内部景观外,洋房组团东、西、北三面环山,不仅居住环境纯粹无干扰,瞰山视野优越。


园区实景图
👍生活品质:
洋房组团与别墅类产品享同等配套服务,舒适度和性价比更优,以刚需价格即享别墅产品级生活,且未来的邻居结为高素质群体,居住氛围更舒心。

洋房组团实景图
易辰.江南大院
易辰.江南大院售楼处电话:400-112-0302【售楼中心】
咨询高峰期请耐心等待,预约来电尊享内部优惠,专业一对一热情服务,让您用专业眼光去买房。
👍内部配套:
🌟“空中云连廊”:利用自然山体坡地的高差,打造约727米的空中连廊景观,从园区主入口处乘坐电梯即可直达连廊,既可以满足山体间的高差衔接,也可以满足全程无台阶的归家体验,让归家成为一场穿越在空中花园的旅行。

其次,空中连廊兼具热力跑道属性,为日后的户外有氧运动、休闲健身提供了绝佳胜地。

空中连廊实景图
🌟运动场域:洋房组团内更配置有篮球场、羽毛球场、活动中心场地等等,沿“空中云连廊”一路串起,随时随地可体验更多运动爱好。

运动空间实景图
🏠产品品质:
🌟艺术立面:自主设计美学立面,不同于其他楼盘的常规复制,让建筑宛若缀入湖山的艺术品。
🌟精装大堂:入户大堂及主体部分采用高品质铝板装饰,更显大气。
🌟户型细节:瞰景阳台的转角皆优化为圆弧形设计,不仅体现了柔和的美感、也进一步提升了产品独特品质感。
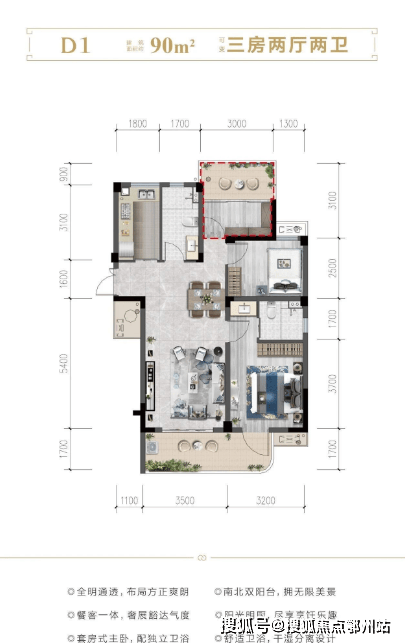
易辰·江南大院二期 户型鉴赏
易辰.江南大院
易辰.江南大院售楼处电话:400-112-0302【售楼中心】
咨询高峰期请耐心等待,预约来电尊享内部优惠,专业一对一热情服务,让您用专业眼光去买房。
产品户型鉴赏



易辰.江南大院
易辰.江南大院售楼处电话:400-112-0302【售楼中心】
咨询高峰期请耐心等待,预约来电尊享内部优惠,专业一对一热情服务,让您用专业眼光去买房。


总占地约300亩,分两期开发,一期253套中式合院已交付,二期建面约6.8万㎡,规划新中式小院、森林叠墅、山景小高层。

整体容积率1.1,新中式小院组团容积率低至0.41,全部为二层建筑,户户皆有花园和露台,花园面积约120-190㎡,户型舒适度与得房率俱佳。
易辰.江南大院
易辰.江南大院售楼处电话:400-112-0302【售楼中心】
咨询高峰期请耐心等待,预约来电尊享内部优惠,专业一对一热情服务,让您用专业眼光去买房。
别墅户型图




易辰.江南大院
易辰.江南大院售楼处电话:400-112-0302【售楼中心】
咨询高峰期请耐心等待,预约来电尊享内部优惠,专业一对一热情服务,让您用专业眼光去买房。
郑重承诺:此房源信息真实有效,开发商直属全程营销策划,中介勿扰如有问题欢迎来电咨询,来电即可享受买房优惠!
1、本资料为要约邀请,不作为要约或承诺;买卖双方的权利义务以双方签订的《商品房买卖合同》及其补充协议、附件等书面文件为准;相关宣传内容不排除因政府相关规划、规定及出卖人分期规划、未能控制等原因发生变化;出卖人将!不定期对宣传材料进行修改,敬请留意最新资料。
2、图片来源于网络,仅作为推广示意使用;如涉及版权使用,请与我司联系。