2025聚焦:上海 浦东【东郊商办中心】售楼处电话→地址→浦东【东郊商办中心】户型→价格→楼盘详情→浦东【东郊商办中心】2025最新销售动态
扫描到手机,新闻随时看
扫一扫,用手机看文章
更加方便分享给朋友
东郊中心位于浦东新区东郊国宾区,界于张江和碧云国际社区之间,随着金科路从张江贯通到碧云国际社区之后,东郊国宾区这片原先有点神秘感的区域,其以居住为主商务办公为辅的高端社区才被越来越多的企业所关注。不管是居住或者企业办公,在东郊首先这仍然被看作是一种身份的象征,二来东郊国宾区的整体环境是众所周知的舒适、安静,三是作为浦东新区未来的核心腹地,具备四通八达的路面交通网络。
项目位于浦东内环旁、东郊国宾馆边,占据东郊国宾区的核心位置,周边交通配套完善,立体交通网通达全市;东郊国宾馆、中欧商学院、汤臣高尔夫等,构成了东郊中心周边高等级的商务圈层,项目5公里范围内还拥有30万平方米的高端商业配套;
同时东郊中心自身7000平方米的定制商业配套,也为客户提供高端个性化的商务服务。东郊中心建筑延续了高档别墅的建筑风格,端庄大气,4.5米建筑层高、无柱网超大办公空间、充足的地下车位配置,外墙精致石材和源自德国的品牌门窗。项目分两期开发,已陆续入住办公。
东郊中心,坐落于上海浦东东郊板块,毗邻东郊宾馆,拥享优质绿色生态环境,悠享通达道路交通系统,尽享便利品质商务配套。东郊中心以其尊贵的商务气质以及领军精神引领城市商道,启幕塔尖商务办公新时代。
一)大师手笔:聘请Takahiro Sato Architect进行建筑设计。主设计师佐藤尊浩先生曾担任上海国际金融中心的建筑设计顾问,并主创设计东京羽田机场第二旅客候机楼等多个世界知名项目。
一)低容积率,高绿化率:项目地处张家浜楔形城市绿化带,约1.0的低容积率, 35%的绿化率,将商务办公融汇于自然美景中,打造轻松精致的优雅环境。
二)宽大花园,宽敞庭院:聘请了世界一流团队泛亚国际担纲园林设计。每户均拥有宽大的花园和宽敞的下沉式庭院,并私享独立屋顶花园,融合内外界环境,周边美景一览无余。花园里多种植物精心搭配,可以从不同的角度感受到四季变幻的优美景致
下层式花园和私家屋顶花园,是东郊中心每幢办公楼拥有的特色,下层式花园不仅提升了地下一层的采光效果,更是拓展了功能使用空间;而屋顶的花园,是繁杂工作后放松闲暇的好去处,还能全览整个东郊国宾区高绿植覆盖的优美景致。
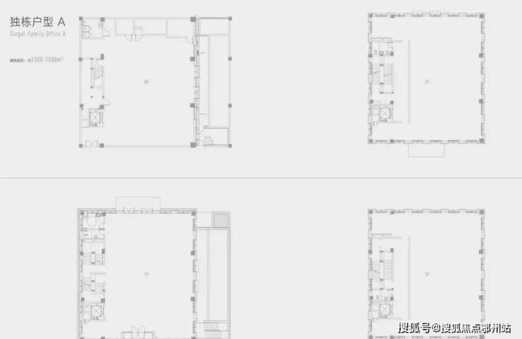
与一期一样,二期同样保留了独栋、双拼的户型设计,2种户型布局上基本一样,只是在面积组合上给了客户更灵活的选择。二期本次推出的15幢单位当中,面积从1082-1861平的办公,以及一幢2250平的商业。
所有户型皆为四层结构,其中一楼大堂层高4.85米,二楼办公层4.80米,三、四层为4.30米层高,交房标准原始毛坯,配送电梯。
实际房源数量和价格以开发商现场公示为准。实地考察参观请提前预约!
声明:本文由入驻焦点开放平台的作者撰写,除焦点官方账号外,观点仅代表作者本人,不代表焦点立场。
