华夏揽溪‬星院-杭州余杭(揽溪‬星院)售楼处位置项目新动态-请看图文解析

搜狐焦点鄂州站 2025-06-18 19:30:19
用手机看
扫描到手机,新闻随时看

扫一扫,用手机看文章
更加方便分享给朋友

杭州余杭华夏溪揽星院售楼处电话400-112-0302【售楼中心】

华夏溪揽星院

华夏溪揽星院售楼处电话:400-112-0302【售楼中心】

咨询高峰期请耐心等待,预约来电尊享内部优惠,专业一对一热情服务,让您用专业眼光去买房。

杭州华夏·溪揽星院以超低的1.2的容积率,布局了36幢叠墅产品,没有中叠,仅以上下双叠形制,承载有天有地的生活梦想。

华夏·溪揽星院效果图

溪揽星院的主力产品,都是 “大面宽短进深”超薄户型

比如,建筑面积约186㎡的边套下叠,地上两层,地下室也是两层。该户型东西长约9.3m,南北进深却只有约9.2m,构成大面宽,短进深的超薄户型,总面宽达到惊人的约18.6米(两层)。

华夏·溪揽星院约186下叠户型图

客厅外面是一个独立院子,约6m进深,面积逾近55㎡的庭院。光线从呈270°夹角的全景玻璃肆意涌入,将房子映衬得一片明亮。

华夏·溪揽星院效果图

约5.4m层高的地下室,夹层设计,办公、健身、瑜伽……随心安排。

华夏·溪揽星院约186㎡下叠展示样板间实景

华夏溪揽星院

华夏溪揽星院售楼处电话400-788-2939【售楼中心】

咨询高峰期请耐心等待,预约来电尊享内部优惠,专业一对一热情服务,让您用专业眼光去买房。

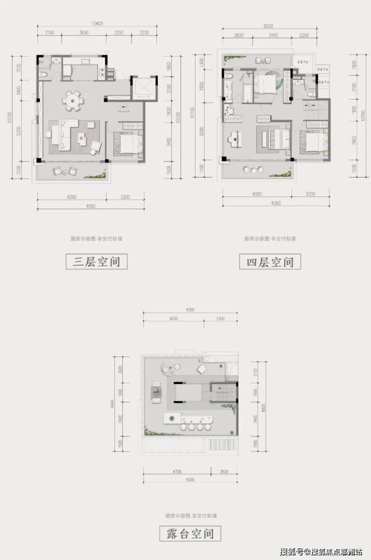
建筑面积约186㎡上叠户型,不仅一楼有阳台,二楼还拥有南北双阳台设计, 整套上叠足足有3个阳台屋顶还有一个约80多平的露台,把房子彻底向天空及户外打开。

华夏·溪揽星院约185方上叠户型图

华夏·溪揽星院效果图

为迎合杭州江南水乡的气质,溪揽星院外立面偏 现代江南风,但同时又会结合当下的主流审美,立面上以斜切45°香槟色木纹铝板和银色金属线条搭配大面积的玻璃幕墙,不仅时尚复古,更能达到居住的更佳视角体验。

华夏·溪揽星院效果图

华夏·溪揽星院效果图

华夏溪揽星院

华夏溪揽星院售楼处电话:400-112-0302【售楼中心】

咨询高峰期请耐心等待,预约来电尊享内部优惠,专业一对一热情服务,让您用专业眼光去买房。

郑重承诺:此房源信息真实有效,开发商直属全程营销策划,中介勿扰如有问题欢迎来电咨询,来电即可享受买房优惠!

1、本资料为要约邀请,不作为要约或承诺;买卖双方的权利义务以双方签订的《商品房买卖合同》及其补充协议、附件等书面文件为准;

相关宣传内容不排除因政府相关规划、规定及出卖人分期规划、未能控制等原因发生变化;出卖人将!不定期对宣传材料进行修改,敬请留意最新资料。

2、图片来源于网络,仅作为推广示意使用;如涉及版权使用,请与我司联系。

声明:本文由入驻焦点开放平台的作者撰写,除焦点官方账号外,观点仅代表作者本人,不代表焦点立场。