长宁(宁国府邸→售楼处电话→宁国府邸→24小时预约热线→宁国府邸售楼部地址-电话、位置、配套、环境

搜狐焦点鄂州站 2025-08-01 10:35:48
用手机看
扫描到手机,新闻随时看

扫一扫,用手机看文章
更加方便分享给朋友

上海长宁 西郊别墅 宁国府邸售楼处电话400-112-0302【售楼中心】

上海神秘豪宅『宁国•府邸』12栋合院别墅-待入市 | 富在外滩-贵在西郊!

长宁『宁国•府邸』

长宁『宁国•府邸』售楼处电话:400-112-0302【售楼中心】

咨询高峰期请耐心等待,预约来电尊享内部优惠,专业一对一热情服务,让您用专业眼光去买房。

上海城市精神

海纳百川 追求卓越

开明睿智 大气谦和

富在外滩 贵在西郊

『宁国•府邸』

毗邻上海传奇豪宅 檀宫

揽尽城市繁华 再造传世奢居典范

出则通达万象 入则独享私谧

建面约1000㎡-1500㎡

12栋合院别墅 即将入市!

套均总价约2亿起!

限量席位 引塔尖圈层竞藏

项目位于上海西郊富人区!自上世纪30年代以来,这里就开始兴建顶级豪宅,是沪上高端别墅区代名词,诞生了众多经典建筑!

大批海内外政商界名流,都将西郊作为居住、度假、社交后花园!大批私人别墅公馆在此诞生,形成了独有私密住区氛围,成了老上海眼中传奇地界!

以上海最大五星级花园别墅式国宾馆——西郊宾馆旁! 檀宫-为代表低调奢华大宅荣耀,彰显真正时代风云!

檀宫,夏都花园,创世纪别墅,西郊299等豪宅别墅均在1公里范围!

2008年8月

檀宫旁边一幅招拍挂地块!

占地面积约13600㎡,只有20亩,容积率1.0! 因为西郊宾馆特殊存在,限高只有15米, 最终被深圳百仕达控股以3.28亿拿下!

其后,这个项目从2010年初开始施工,至今已经超13年! 这个项目就是「宁国府邸」位于清溪路与可乐东路交叉口, 与檀宫、西郊宾馆为邻!

长宁『宁国•府邸』

长宁『宁国•府邸』售楼处电话:400-112-0302【售楼中心】

咨询高峰期请耐心等待,预约来电尊享内部优惠,专业一对一热情服务,让您用专业眼光去买房。

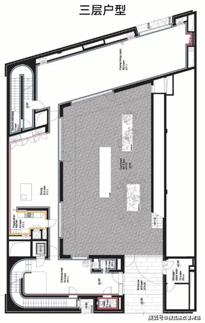
项目由12栋合院别墅组成! 其中12号是楼王,13号是物业管理用房!

11栋可售房源面积段约为1000㎡-1500㎡! 其中4栋为精装修交付,7栋为毛坯交付!

宁国府邸-整体占地面积不大,但是豪宅-必然需要有水系相伴! 项目南面野奴泾-为苏州河支流,是一条天然活水河!

内部贯穿着一条街道,采用了中国传统街巷低退界理念!步道和树木行列对称,交相呼应!中式园林设计最高境界是: 于不经意间以一种浑然天成姿态-跃入人们眼帘!

长宁『宁国•府邸』

长宁『宁国•府邸』售楼处电话:400-112-0302【售楼中心】

咨询高峰期请耐心等待,预约来电尊享内部优惠,专业一对一热情服务,让您用专业眼光去买房。

项目建筑设计社会评价, 可谓上天入地,无所不有!有说是超现实主义,有说提篮桥风云,有说碉堡合院风!

当然,设计师大有来头—— 英国殿堂级建筑设计师-大卫·奇普菲尔德(David Chipperfield)而他在中国另外一个作品则是:位于上海徐汇滨江- 西岸美术馆!

大卫·奇普菲尔德-在西郊这个项目上,划时代采用了中国传统合院形式!

长宁『宁国•府邸』

长宁『宁国•府邸』售楼处电话:400-112-0302【售楼中心】

咨询高峰期请耐心等待,预约来电尊享内部优惠,专业一对一热情服务,让您用专业眼光去买房。

合院:理念是通过围墙来保证对外私密性,而在内部则是通过共享庭院中庭-来营造一个开放居住氛围!

这与传统独栋别墅-正好相反,这里没有什么豪宅边界感!也没有南向大面宽,南向采光等相关讲究!

特别艺术构思, 造就了-宁国府邸每一栋建筑独一无二性格!作品舶来了庭院式建筑,营造出一系列错落有致室内外空间秩序!

将室外空间,和家内居私密性结合在一座别墅之内!而12栋建筑,整体融合成一个大院落!

长宁『宁国•府邸』

长宁『宁国•府邸』售楼处电话:400-112-0302【售楼中心】

咨询高峰期请耐心等待,预约来电尊享内部优惠,专业一对一热情服务,让您用专业眼光去买房。

样板房

长宁『宁国•府邸』

长宁『宁国•府邸』售楼处电话:400-112-0302【售楼中心】

咨询高峰期请耐心等待,预约来电尊享内部优惠,专业一对一热情服务,让您用专业眼光去买房。

郑重承诺:此房源信息真实有效,开发商直属全程营销策划,中介勿扰如有问题欢迎来电咨询,来电即可享受买房优惠!

1、本资料为要约邀请,不作为要约或承诺;买卖双方的权利义务以双方签订的《商品房买卖合同》及其补充协议、附件等书面文件为准;相关宣传内容不排除因政府相关规划、规定及出卖人分期规划、未能控制等原因发生变化;出卖人将!不定期对宣传材料进行修改,敬请留意最新资料。

2、图片来源于网络,仅作为推广示意使用;如涉及版权使用,请与我司联系。

声明:本文由入驻焦点开放平台的作者撰写,除焦点官方账号外,观点仅代表作者本人,不代表焦点立场。