上海壹号院 (官方售楼处) 官网 - 上海壹号院销售中心 - 环境 - 户型 - 价格 - 地址 - 楼盘详情 - 配套 - 电话 - 交房时间 - 配套 - 电话 - 交房时间
扫描到手机,新闻随时看
扫一扫,用手机看文章
更加方便分享给朋友
上海壹号院售楼处电话:400-152-4009【开发商已认证】上海壹号院官方售楼处电话:400-152-4009【售楼处电话/地址】上海壹号院售楼处电话:400-152-4009【官方认证】
新湖融创锦园案名更名【上海壹号院】二期新推107套,约310-390㎡海派大宅

上海壹号院售楼处电话:400-152-4009【开发商已认证】上海壹号院官方售楼处电话:400-152-4009【售楼处电话/地址】上海壹号院售楼处电话:400-152-4009【官方认证】
项目总建筑面积约43万方,由533套海派高层、151套风貌联排合院及9套风貌商业等多元产品业态组成。
上海壹号院售楼处电话:400-152-4009【开发商已认证】上海壹号院官方售楼处电话:400-152-4009【售楼处电话/地址】上海壹号院售楼处电话:400-152-4009【官方认证】
【锦园】地理位置位于黄浦区中华路与复兴东路之交汇点,地处上海中心城区。
产品类型组成:
海派高层:533套(建面约200-1000㎡,主力户型约300-400㎡)
风貌联排合院:151套(建面约250-1200㎡,主力户型约300-500㎡)
风貌商业:9套
【锦园】二期预计12月再入市!加推107套约310-570㎡海派大宅,主力户型约310、350、390平的3-5房
一期首推6#楼,主力建面约267-908㎡高层住宅,33套房源,总价约3000万-1.6亿,项目首开已全清盘
项目总建筑面积约23万方,根据规划由6栋14-37层高层住宅、部分改建保留的联排别墅,合院别墅以及部分配套用房组成。
(项目详细介绍资料如下)
上海壹号院售楼处电话:400-152-4009【售楼中心】上海壹号院官方售楼处电话:400-152-4009【售楼处电话/地址】上海壹号院售楼处电话:400-152-4009【官方认证】上海壹号院售楼中心24小时热线电话
新湖融创锦园案名更名【上海壹号院】二期新推107套,约310-390㎡海派大宅
根据规划,项目总建筑面积约23万方,由6栋14-37层的高层住宅、部分改建保留的联排别墅、合院别墅以及部分配套用房组成。
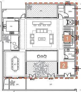
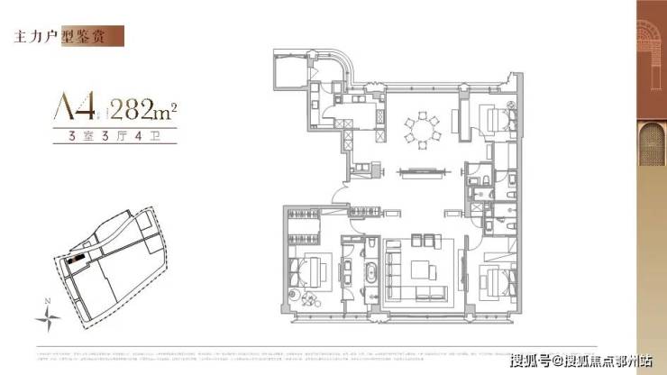
户型图如下:
网传合院户型图如下👇
部分保留历史建筑的户型平面图👇
(双击可查看大图)
一层
二层
一层
二层
一层
二层
一层
二层
一层
二层
一层
二层
三层
一层
二层
三层
一层平面图
二层平面图
亚龙项目,经历了多轮方案后,最终明确了中间为低区,东西两侧为高区的形态排布方式。设计阵容,采用了gad团队和华东建筑设计院共同打造!ps:gad的经典作品有阳光城檀悦101、阳光城滨江悦、杭州仁恒滨江园等。
效果图👇
上海壹号院售楼处电话:400-152-4009【开发商已认证】上海壹号院官方售楼处电话:400-152-4009【售楼处电话/地址】上海壹号院售楼处电话:400-152-4009【官方认证】
上海壹号院售楼处电话:400-152-4009【开发商已认证】上海壹号院官方售楼处电话:400-152-4009【售楼处电话/地址】上海壹号院售楼处电话:400-152-4009【官方认证】
声明:本文由入驻焦点开放平台的作者撰写,除焦点官方账号外,观点仅代表作者本人,不代表焦点立场。
